Basement
: $395.00
May require additional drawing time, please call to confirm before ordering.
Total Living Area may increase with Basement Foundation option.
Crawlspace
: $295.00
May require additional drawing time, please call to confirm before ordering.
Basement - * $395.00 Total Living Area may increase with Basement Foundation option. Crawlspace - * $295.00 Slab
Exterior Walls:
2x4 2x6 - * $295.00
House Width:
90'0
House Depth:
44'0
Number of Stories:
1
Bedrooms:
3
Full Baths:
2
Half Baths:
1
Max Ridge Height:
18'9 from Front Door Floor Level
Primary Roof Pitch:
5:12
Roof Load:
30 psf
Roof Framing:
Truss
Porch:
840 sq ft
Main Ceiling Height:
9'
* May require additional drawing time.
Plan Description
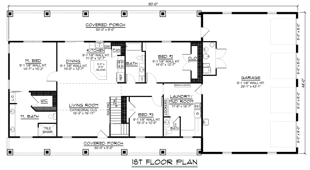
Big Garage Ranch Plan With 4 Stall Garage / Shop
Big Garage Ranch Plan 43931 combines two very popular things: Ranch Style House Plan + Huge Garage. The house itself is a total of 1,803 square feet of living space, 3 bedrooms, and 2.5 bathrooms. The attached garage and shop area measures about 29 feet wide by 43 feet deep and has a whopping 1,320 square feet! You will have enough room to park 4 vehicles, plus there is a convenient mechanical room in the rear of the garage space. Now, you can work on projects by stepping straight from the house. No need to travel through any bad weather to warm up the car.
Big Garage Ranch Plan With Two Covered Porches
Big Garage Ranch Plan 43931 is a great choice for those who are building on large parcels of land. Firstly, busy families and farmers will appreciate the simple design of the house itself. Ranch style is favored because most are only one level with a simple footprint. That means fast construction and easy maintenance. This one has a metal roof and wonderful long covered porches. After a long day working in the fields or taking care of the cows, you might have a moment to sit down on the porch. Sip on a glass of sweet tea and watch the sun set over the fields where you have worked so hard.
Secondly, this plan is a good choice for those who live in a cold climate. Think about the heaps of snow that you have piling up in January, and this plan becomes more appealing. Is your truck on the fritz? No problem because you can work on any vehicle in your shop and have all of your tools right at hand. No more trekking out to an exterior building or searching for tools you had stored an acre away. This 4 car garage even has a utility sink where you can clean up before you go back into the house. Each garage door is 8 feet wide by 8 feet tall.
Large Combination Laundry and Mud Room
Thirdly, the large combination mudroom and laundry room keeps the mess at bay. If you live on a farm, everyone in the family needs a place to clean up before they come inside. Choose Big Garage Ranch Plan 43931 with its mud room entrance from the garage. This room includes a bench with hooks, washer and dryer, counter space for folding clothes, storage lockers, and a half bathroom. Two children's bedrooms are also located on this end of the house along with a full guest bathroom.
Next, the living space is nice and open because we want to promote family time. The kitchen has a corner walk-in pantry and a large angled island with bar seating. Eat in the adjoined dining space and then sit down for a movie in the living room which is complete with a cathedral ceiling. Mom and Dad reside on the left side of the house with a good-sized bedroom and a spacious ensuite. They have a large walk-in closet attached to the bathroom, double sink with lots of counter space, and a tile shower.
What is not included will be beam sizes, floor framing plan, roof framing plan, wall framing plans, plumbing and hvac (We do not include these for a few reasons. Our plans are sold across the country, so it's not possible for us to meet local code requirements. To maintain usability, we allow for those details to be decided by local engineers and contractors so they can meet your code requirements.).
Modifications
Receive a FREE modification estimate.
Plan modification is a way of turning a stock plan into your unique custom plan. It's still just a small fraction of the price you would pay to create a home plan from scratch. We believe that modification estimates should be FREE!
We provide a modification service so that you can customize your new home plan to fit your budget and lifestyle.
Email Designer This is the best and quickest way to get a modification quote!
Please include your preferred Foundation Type and a Specific List of Changes. You can also attach a Sketch of Changes.
It's as simple as that!
Cost To Build
What will it cost to build your new home?
Let us help you find out!
Family Home Plans has partnered with Home-Cost.com to provide you the most accurate, interactive online estimator available. Home-Cost.com is a proven leader in residential cost estimating software for over 20 years.
No Risk Offer: Order your Home-Cost Estimate now for just $29.95! We will provide you with a discount code in your receipt for when you decide to order any plan on our website than will more than pay you back for ordering an estimate.
Accurate. Fast. Trusted. Construction Cost Estimates That Save You Time and Money.
$29.95 per plan
** Available for U.S. and Canada
With your 30-day online cost-to-build estimate you can start enjoying these benefits today.
INSTANT RESULTS: Immediate turnaround—no need to wait days for a cost report.
RELIABLE: Gain peace of mind and confidence that comes with a reliable cost estimate for your custom home.
INTERACTIVE: Instantly see how costs change as you vary design options and quality levels of materials!
REDUCE RISK: Minimize potential cost overruns by becoming empowered to make smart design decisions. Get estimates that save thousands in costly errors.
PEACE OF MIND: Take the financial guesswork out of building your dream home.
DETAILED COSTING: Detailed, data-backed estimates with +/-120 lines of costs / options for your project.
EDITABLE COSTS: Edit the line-item labor & material price with the “Add/Deduct” field if you want to change a cost.
Q:How wide is the house portion of plan number 43931? It doesn't specifically say in the blueprint. The overall plan is 44 ft wide and the porches are 9 ft each which gives us 18 ft so if I subtract 18 ft from 44 ft, that gives me 26 ft which seems a little thin. And I can't calculate it from any of the interior dimensions either. Please help me out here. Again I need the width of the house portion of the plan Thank you Lori Sanders
A:The house portion is 60' wide x 30' deep. The front porch is 5' deep and the rear porch is 9' deep. Does that help?
Common Q & A
Q:Can I make modifications to this plan?
A:Yes you can! Please click the "Modifications" tab above to get more information.
Q:What is the estimated price to build this plan?
A:The national average for a house is running right at $125.00 per SF. You can get more detailed information by clicking the Cost-To-Build tab above. Sorry, but we cannot give cost estimates for garage, multifamily or project plans.
FHP Low Price Guarantee
If you find the exact same plan featured on a competitor's web site at a lower price, advertised OR special SALE price, we will beat the competitor's price by 5% of the total, not just 5% of the difference! Our guarantee extends up to 4 weeks after your purchase, so you know you can buy now with confidence.