Plan 65141 | Order Code: 00WEB | FamilyHomePlans.com | 800-482-0464
Family Home Plans - Better Living By Good Design

House Plan 65141 | Order Code: 00WEB

FamilyHomePlans.com
800-482-0464

Click-To-Print This Page

Specifications

  • 1597 Total Living Area
  • 975 Main Level
  • 622 Upper Level
  • 3 Bedrooms
  • 1 Full Bath(s)
  • 1 Half Bath(s)
  • 38' Wide x 30'8 Deep
Available Foundation Types:
  • Basement
  • Crawlspace - * $425.00
  • Slab - * $425.00
  • Stem Wall Slab - * $425.00

* May require additional drawing time.

Plan Pricing

  • PDF File: $1,600.00
  • CAD File: $2,600.00
  • Right Reading Reverse: $250.00
    All sets will be Readable Reverse copies. Turn around time is usually 3 to 5 business days.
  • Additional Sets: $65.00
* prices shown w/o any discounts applied

House Plan 65141 | Order Code: 00WEB | Elevation

Reverse Plan


House Plan 65141 | Order Code: 00WEB | First Floor Plan

Reverse Plan


House Plan 65141 | Order Code: 00WEB | Second Floor Plan

Reverse Plan


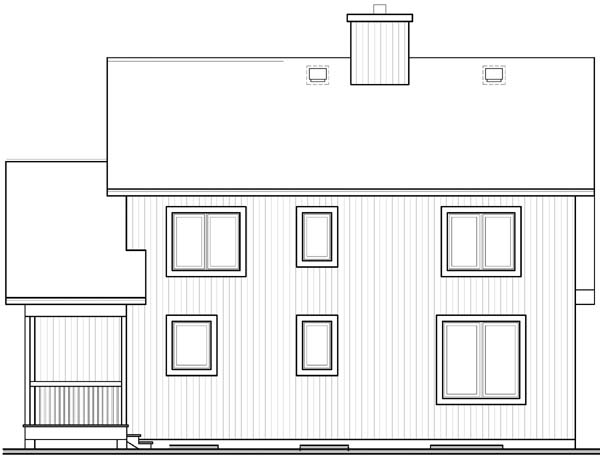
House Plan 65141 | Order Code: 00WEB | Rear Elevation

Specifications

  • Total Living Area: 1597
  • Main Living Area: 975
  • Upper Living Area: 622
  • Garage Type: None
  • House Width: 38'
  • House Depth: 30'8
  • Number of Stories: 2
  • Bedrooms: 3
  • Full Baths: 1
  • Half Baths: 1
  • Max Ridge Height: 26'4 from Front Door Floor Level
  • Primary Roof Pitch: 9:12
  • Roof Framing: Truss
  • FirePlace: Yes
  • 1st Floor Master: Yes
  • Main Ceiling Height: 8'

Available Foundation Types:

  • Basement
  • Crawlspace - $425.00
  • Slab - $425.00
  • Stem Wall Slab - $425.00

Plan Pricing

  • PDF File: $1,600.00
  • CAD File: $2,600.00
  • Right Reading Reverse: $250.00
    All sets will be Readable Reverse copies. Turn around time is usually 3 to 5 business days.
  • Additional Sets: $65.00
* prices shown w/o any discounts applied

Architectural Styles

Contemporary, Craftsman

House Plan 65141 | Order Code: 00WEB
FamilyHomePlans.com
800-482-0464

Plan Modifications

Plan modification is a way of turning a stock plan into your unique custom plan. It's still just a small fraction of the price you would pay to create a home plan from scratch. You will receive a FREE, no obligation, modification estimate to get exactly the home plan you've been dreaming of. Simply contact the modification department 1 of 3 ways:

Call 866-465-5866 and talk to a live person that can give you and FREE modification estimate over the phone!

Email Us - Please Include your telephone number, plan number, foundation type, state you are building in and a specific list of changes.

Fax: 651-602-5050 - Make sure to include a cover sheet with your contact info. Make attention to the FamilyHomePlans.com Modification Department.

House Plan 65141 | Order Code: 00WEB
FamilyHomePlans.com
800-482-0464

COPYRIGHT NOTICE. It is illegal to build this plan without a legally obtained set of plans. It is illegal to copy or redraw these plans. Violation of U.S. copyright laws are punishable with fines of up to $200,000. After the purchase of plans, changes may be made by a qualified professional.