Plan 82792 | Order Code: 00WEB | FamilyHomePlans.com | 800-482-0464
Family Home Plans - Better Living By Good Design

House Plan 82792 | Order Code: 00WEB

FamilyHomePlans.com
800-482-0464

Click-To-Print This Page

Specifications

  • 2972 Total Living Area
  • 2426 Main Level
  • 546 Upper Level
  • 3 Bedrooms
  • 3 Full Bath(s)
  • 1 Half Bath(s)
  • 2 Car Garage
  • 118'4" Wide x 51'0" Deep
Available Foundation Types:
  • Basement - * $299.00
  • Crawlspace
  • Slab
  • Walkout Basement - * $299.00

* May require additional drawing time.

Plan Pricing

  • PDF File: $1,350.00
  • 5 Sets: $1,800.00
  • 5 Sets plus PDF File: $2,050.00
  • CAD File: $2,700.00
  • Right Reading Reverse: $299.00
    All sets will be Readable Reverse copies. Turn around time is usually 3 to 5 business days.
  • Additional Sets: $80.00
* prices shown w/o any discounts applied

House Plan 82792 | Order Code: 00WEB | Elevation

Reverse Plan


House Plan 82792 | Order Code: 00WEB | First Floor Plan

Reverse Plan


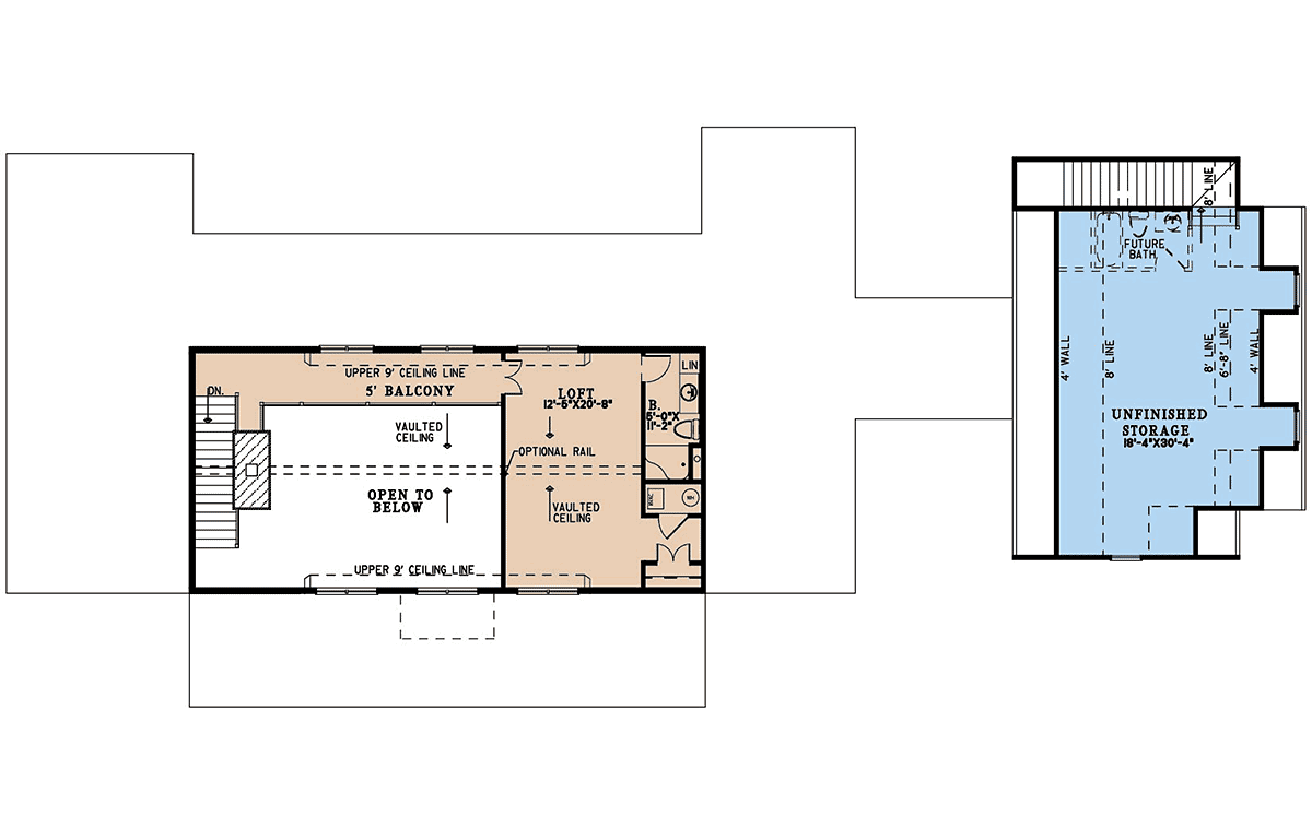
House Plan 82792 | Order Code: 00WEB | Second Floor Plan

Reverse Plan


House Plan 82792 | Order Code: 00WEB | Rear Elevation

Specifications

  • Total Living Area: 2972
  • Main Living Area: 2426
  • Upper Living Area: 546
  • Bonus Area: 589
  • Garage Area: 887
  • Garage Type: Attached
  • Garage Bays: 2
  • House Width: 118'4"
  • House Depth: 51'0"
  • Number of Stories: 1.5
  • Bedrooms: 3
  • Full Baths: 3
  • Half Baths: 1
  • Max Ridge Height: 33'11" from Front Door Floor Level
  • Primary Roof Pitch: 12:12
  • Roof Load: 45 psf
  • Roof Framing: Stick
  • Porch: 899 sq ft
  • FirePlace: Yes
  • 1st Floor Master: Yes
  • Main Ceiling Height: 10'
  • Upper Ceiling Height: 8'

Available Foundation Types:

  • Basement - $299.00 Total Living Area may increase with Basement Foundation option - please call to confirm before ordering.
  • Crawlspace
  • Slab
  • Walkout Basement - $299.00 Total Living Area may increase with Basement Foundation option - please call to confirm before ordering.

Plan Pricing

  • PDF File: $1,350.00
  • 5 Sets: $1,800.00
  • 5 Sets plus PDF File: $2,050.00
  • CAD File: $2,700.00
  • Right Reading Reverse: $299.00
    All sets will be Readable Reverse copies. Turn around time is usually 3 to 5 business days.
  • Additional Sets: $80.00

Orders placed with overnight/2-day shipping may be delayed by two business days due to a review process.

* prices shown w/o any discounts applied

Special Features:

  • Bonus Room
  • Entertaining Space
  • Front Porch
  • Guest Room
  • Mudroom
  • Open Floor Plan
  • Pantry
  • Rear Porch
  • Storage Space

Architectural Styles

Country, Farmhouse, New American

House Plan 82792 | Order Code: 00WEB
FamilyHomePlans.com
800-482-0464

Plan Modifications

Receive a FREE modification estimate:

Plan modification is a way of turning a stock plan into your unique custom plan. It's still just a small fraction of the price you would pay to create a home plan from scratch. We believe that modification estimates should be FREE!

We provide a modification service so that you can customize your new home plan to fit your budget and lifestyle.

Simply contact the modification department via...

1) Email Us - This is the best and quickest way to get a modification quote!

Please include your Telephone Number, Plan Number, Foundation Type, State you are building in and a Specific List of Changes and Sketch is possible.

2) Call 1-870-931-5777 to discuss the modification procedures, the “How to”.

It's as simple as that!

House Plan 82792 | Order Code: 00WEB
FamilyHomePlans.com
800-482-0464

COPYRIGHT NOTICE. It is illegal to build this plan without a legally obtained set of plans. It is illegal to copy or redraw these plans. Violation of U.S. copyright laws are punishable with fines of up to $200,000. After the purchase of plans, changes may be made by a qualified professional.