Plan 86740 | Order Code: 00WEB | FamilyHomePlans.com | 800-482-0464
Family Home Plans - Better Living By Good Design

House Plan 86740 | Order Code: 00WEB

FamilyHomePlans.com
800-482-0464

Click-To-Print This Page

Specifications

  • 10565 Total Living Area
  • 3762 Lower Level
  • 4561 Main Level
  • 3642 Upper Level
  • 6 Bedrooms
  • 6 Full Bath(s)
  • 3 Car Garage
  • 136' Wide x 73' Deep
Available Foundation Types:
  • Walkout Basement

Plan Pricing

  • PDF File: $2,495.00
  • 5 Sets: $2,395.00
  • 5 Sets plus PDF File: $2,645.00
  • PDF File Unlimited Build: $3,195.00
  • CAD File: $2,495.00
  • CAD File Unlimited Build: $3,195.00
    Unlimited Build License issued on CAD File Unlimited Build orders.
  • Right Reading Reverse: $195.00
    All sets will be Readable Reverse copies. Turn around time is usually 3 to 5 business days.
  • Additional Sets: $165.00
* prices shown w/o any discounts applied

House Plan 86740 | Order Code: 00WEB | Elevation

Reverse Plan


House Plan 86740 | Order Code: 00WEB | Lower Floor Plan

Reverse Plan


House Plan 86740 | Order Code: 00WEB | First Floor Plan

Reverse Plan


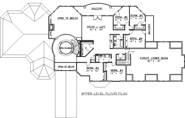
House Plan 86740 | Order Code: 00WEB | Second Floor Plan

Reverse Plan


House Plan 86740 | Order Code: 00WEB | Rear Elevation

Specifications

  • Total Living Area: 10565
  • Lower Living Area: 3762
  • Main Living Area: 4561
  • Upper Living Area: 3642
  • Garage Type: Attached
  • Garage Bays: 3
  • House Width: 136'
  • House Depth: 73'
  • Number of Stories: 2
  • Bedrooms: 6
  • Full Baths: 6
  • Max Ridge Height: 35' from Front Door Floor Level
  • Primary Roof Pitch: 8:12
  • Roof Framing: Truss
  • Porch: 772 sq ft
  • Formal Dining Room: Yes
  • FirePlace: Yes
  • 2nd Floor Laundry: Yes
  • 1st Floor Master: Yes
  • Main Ceiling Height: 10'
  • Upper Ceiling Height: 10'

Available Foundation Types:

  • Walkout Basement

Plan Pricing

  • PDF File: $2,495.00
  • 5 Sets: $2,395.00
  • 5 Sets plus PDF File: $2,645.00
  • PDF File Unlimited Build: $3,195.00
  • CAD File: $2,495.00
  • CAD File Unlimited Build: $3,195.00
    Unlimited Build License issued on CAD File Unlimited Build orders.
  • Right Reading Reverse: $195.00
    All sets will be Readable Reverse copies. Turn around time is usually 3 to 5 business days.
  • Additional Sets: $165.00
* prices shown w/o any discounts applied

Architectural Styles

Traditional

House Plan 86740 | Order Code: 00WEB
FamilyHomePlans.com
800-482-0464

Plan Modifications

Receive a FREE modification estimate in one of 3 ways. Our modification team is ready to help you adjust any plan to fit your needs. The ReDesign process is simple and estimates are free!

1. Complete this On-Line Request Form

2. Print, complete and fax this PDF Form to us at 1-800-675-4916.

3. Want to talk to an expert? Call us at 913-938-8097 (Canadian customers, please call 800-361-7526) to discuss modifications.

Note: - a sketch of the changes or the website floor plan marked up to reflect changes is a great way to convey the modifications in addition to a written list.

We Work Fast!

When you submit your ReDesign request, a designer will contact you within 24 business hours with a quote.
You can have your plan redesigned in as little as 14 - 21 days!

We look forward to hearing from you!

Start today planning for tomorrow!

House Plan 86740 | Order Code: 00WEB
FamilyHomePlans.com
800-482-0464

COPYRIGHT NOTICE. It is illegal to build this plan without a legally obtained set of plans. It is illegal to copy or redraw these plans. Violation of U.S. copyright laws are punishable with fines of up to $200,000. After the purchase of plans, changes may be made by a qualified professional.