



** 1 Set order does not include a License-To-Build. For bidding purposes only. Customer can upgrade order within 90 days.
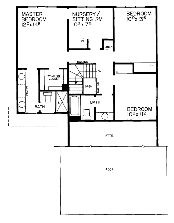
walk-in entry closet - 5x5
pantry - 4x4
laundry room - 6x7
master walk-in closet - 6'8" x 5
master bath - 12'6" x 10'6" (minus 6'8" x 5)
***There may be a 2 week delay for the CAD file. Please call for turnaround time.***
* prices shown w/o any discounts appliedCOPYRIGHT NOTICE. It is illegal to build this plan without a legally obtained set of plans. It is illegal to copy or redraw these plans. Violation of U.S. copyright laws are punishable with fines of up to $200,000. After the purchase of plans, changes may be made by a qualified professional.