Basement
: $395.00
May require additional drawing time, please call to confirm before ordering.
Total Living Area may increase with Basement Foundation option.
Crawlspace
: $295.00
May require additional drawing time, please call to confirm before ordering.
Basement - * $395.00 Total Living Area may increase with Basement Foundation option. Crawlspace - * $295.00 Slab
Exterior Walls:
2x4 2x6 - * $295.00
House Width:
114'0
House Depth:
60'0
Number of Stories:
1
Bedrooms:
3
Full Baths:
2
Max Ridge Height:
27'9 from Front Door Floor Level
Primary Roof Pitch:
5:12
Roof Load:
30 psf
Roof Framing:
Truss
Porch:
253 sq ft
Deck:
686 sq ft
Main Ceiling Height:
9'
* May require additional drawing time.
Plan Description
Barndominium Style Design With Over 3,000 SQ FT Shop / Garage
Barndominium Style Design 41850 is a great example of the popular Barndo Style Home. Instead of metal frame however, this one calls for 2x4 walls. As a result, you have a barndominium look with traditional construction. Not only does the style set this home apart, but the vast size of the garage does as well. The garage is officially 4 bays, but you could fit more vehicles in the center if you want. Each smaller door is 10' wide by 8' tall, and RV doors are 14' wide by 14' tall. Overall, the house measures 114' wide by 60' deep and has 1,896 square feet of living space with 3 bedrooms and 2 bathrooms.
Barndominium Style Design and Big Covered Porches
Barndominium Style Design 41850 is full of features everyone wants in a modern farmhouse. Firstly, when you build on a good-sized piece of land, it's expected that you will have a big porch. This design offers a front covered porch and a rear covered patio. The front measures 33' wide by 8' deep. Thick porch columns with stone bases really dress up the entry area. Around back, the covered patio outdoes the front because it measures 60' wide by 12' deep. You will be the most popular person in your family next 4th of July. Get the biggest grill you can buy.
Secondly, you bought this house for the shop, correct? Now you can house the tractor or the 4-wheelers you always wanted. On the other hand, the car guy in the family might park a classic car in this garage. Now he can work on it whenever he wants—and all of his supplies are right at hand because the shop space is so large. Best of all, you have drive-through parking for your RV! Thirdly, the living space is open because no one wants to feel claustrophobic. If you like wide open spaces, it's only natural that you would enjoy the openness among your kitchen, dining room, and living room.
3 Bedrooms on One Level
Not a fan of stairs? No problem because Barndominium Style Design 41850 is a one-story barndominium style plan. Although it's one story, it's also a split floor plan. That means that Mom and Dad's bedroom is on the opposite side of the house from the kids. The master bedroom has a good-sized bathroom with linen closet, double sink, walk-in shower, and attached walk-in closet. The pocket door bathroom entrance and the angled wall on the closet helps to save space.
Moving over to the children's bedrooms, bedroom 2 has lots of closet space. The kids share the full bathroom off the hallway, and they have close access to the laundry room. Homeowners will appreciate the convenience of the counter space in the laundry room because it helps with folding clothes. Lastly in this part of the home, we find a cozy little den. Relax here or turn it into a home office. The choice is yours!
Special Features:
Deck or Patio
Entertaining Space
Flex Space
Front Porch
Open Floor Plan
Pantry
Safe Room
Storage Space
Workshop
What's Included?
View Sample Plan
Sample Plan may not actually be Plan 41850. It is just an example of this designer's contruction documents.
What is not included will be beam sizes, floor framing plan, roof framing plan, wall framing plans, plumbing and hvac (We do not include these for a few reasons. Our plans are sold across the country, so it's not possible for us to meet local code requirements. To maintain usability, we allow for those details to be decided by local engineers and contractors so they can meet your code requirements.).
Modifications
Receive a FREE modification estimate.
Plan modification is a way of turning a stock plan into your unique custom plan. It's still just a small fraction of the price you would pay to create a home plan from scratch. We believe that modification estimates should be FREE!
We provide a modification service so that you can customize your new home plan to fit your budget and lifestyle.
Email Designer This is the best and quickest way to get a modification quote!
Please include your preferred Foundation Type and a Specific List of Changes. You can also attach a Sketch of Changes.
It's as simple as that!
Cost To Build
What will it cost to build your new home?
Let us help you find out!
Family Home Plans has partnered with Home-Cost.com to provide you the most accurate, interactive online estimator available. Home-Cost.com is a proven leader in residential cost estimating software for over 20 years.
No Risk Offer: Order your Home-Cost Estimate now for just $29.95! We will provide you with a discount code in your receipt for when you decide to order any plan on our website than will more than pay you back for ordering an estimate.
Accurate. Fast. Trusted. Construction Cost Estimates That Save You Time and Money.
$29.95 per plan
** Available for U.S. and Canada
With your 30-day online cost-to-build estimate you can start enjoying these benefits today.
INSTANT RESULTS: Immediate turnaround—no need to wait days for a cost report.
RELIABLE: Gain peace of mind and confidence that comes with a reliable cost estimate for your custom home.
INTERACTIVE: Instantly see how costs change as you vary design options and quality levels of materials!
REDUCE RISK: Minimize potential cost overruns by becoming empowered to make smart design decisions. Get estimates that save thousands in costly errors.
PEACE OF MIND: Take the financial guesswork out of building your dream home.
DETAILED COSTING: Detailed, data-backed estimates with +/-120 lines of costs / options for your project.
EDITABLE COSTS: Edit the line-item labor & material price with the “Add/Deduct” field if you want to change a cost.
Ask the Designer any question you may have. NOTE: If you have a plan modification question, please click on the Plan Modifications tab above.
Previous Q & A
Q:Are the window sizes included?
A:Yes! There is an opening schedule that includes the window's width and height.
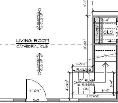
Q:can you send a floor plan layout with a basement?
A:Attached is an image depicting the basement stair location on the first floor. Currently the basement is entirely open, so there aren't any rooms detailed.
A:Yes you can! Please click the "Modifications" tab above to get more information.
Q:What is the estimated price to build this plan?
A:The national average for a house is running right at $125.00 per SF. You can get more detailed information by clicking the Cost-To-Build tab above. Sorry, but we cannot give cost estimates for garage, multifamily or project plans.
FHP Low Price Guarantee
If you find the exact same plan featured on a competitor's web site at a lower price, advertised OR special SALE price, we will beat the competitor's price by 5% of the total, not just 5% of the difference! Our guarantee extends up to 4 weeks after your purchase, so you know you can buy now with confidence.