| Order Code: 00WEB |
| Total Living Area: | 988 sq ft |
| Main Living Area: | 988 sq ft |
| Garage Type: | None |
| See our garage plan collection. If you order a house and garage plan at the same time, you will get 10% off your total order amount. | |
| Foundation Types: | Basement - * $395.00 Total Living Area may increase with Basement Foundation option. Crawlspace Slab Stem Wall Slab Walkout Basement - * $495.00 Total Living Area may increase with Basement Foundation option. |
| Exterior Walls: | 2x4 2x6 |
| House Width: | 38'0 |
| House Depth: | 32'0 |
| Number of Stories: | 1 |
| Bedrooms: | 2 |
| Full Baths: | 2 |
| Max Ridge Height: | 19'5 from Front Door Floor Level |
| Primary Roof Pitch: | 8:12 |
| Roof Framing: | Truss |
| Porch: | 84 sq ft |
| Main Ceiling Height: | 9' |
2 Bedroom Small House Plan with Under 1,000 Square Feet Heated Space
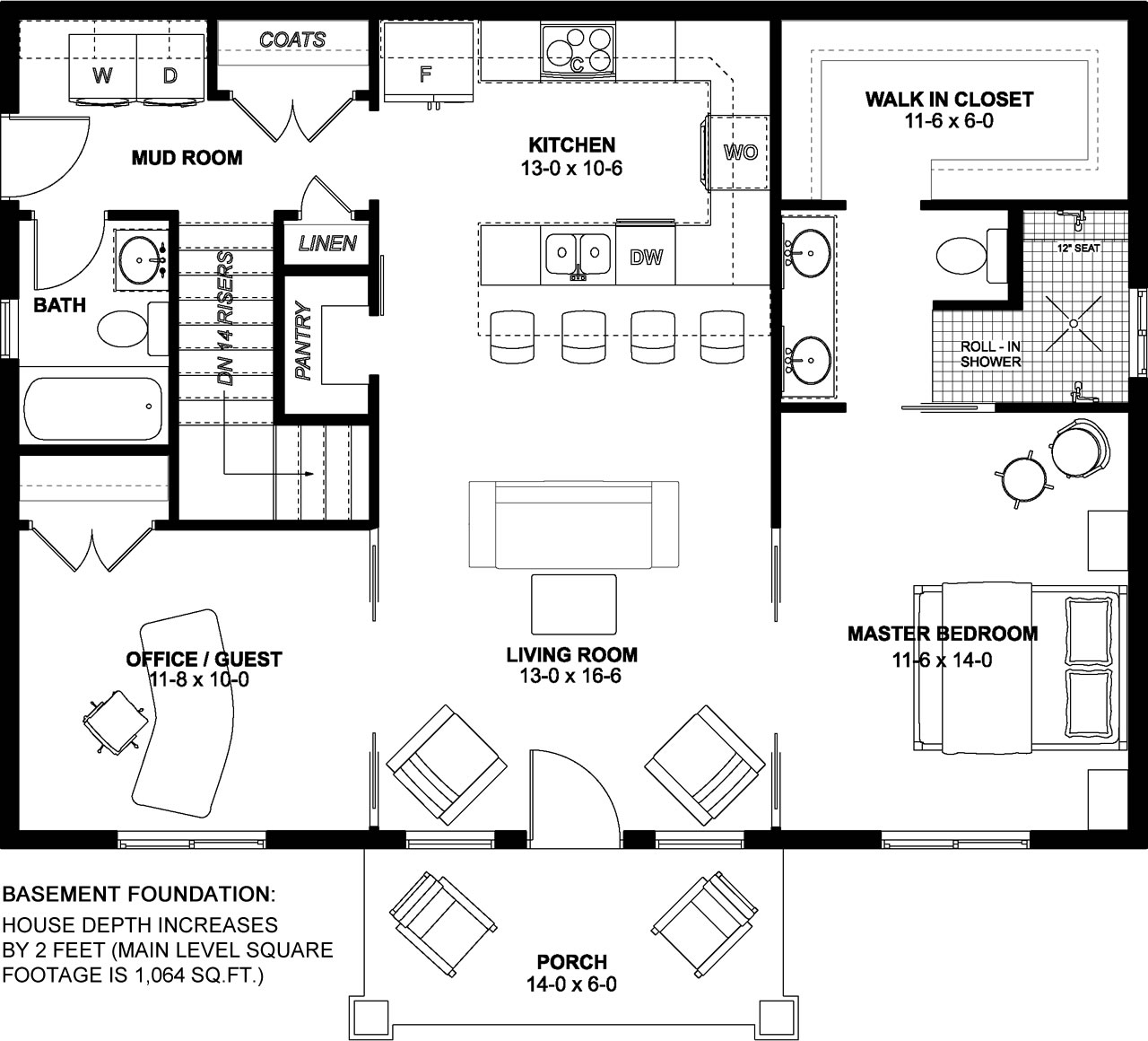
Small House Plan 80523 has 2 bedrooms, 2 baths, and 988 square feet. Despite being small, the design is open and comfortable, and the exterior is picture-perfect. This is an economical build because of the simple rectangular layout. Build this home for an investment property, guest house, getaway, or vacation home.
Small House Plan With Interior Pictures
Let's take a look inside. The living room is cozy, and it's open to the kitchen. Those who like minimalist living will appreciate this design because it has everything you need and nothing that you don't. There is no need for a dining table because seating is available at the counter. To keep the living space clutter-free, there is a large walk-in kitchen pantry for storage. Abundant natural light and neutral colors and finishes add to the peaceful aesthetic in the living space.
Access the two bedrooms via double pocket doors from the living room. The pocket doors are ideal because they don't waste space like a traditional door. The master bedroom has a huge walk-in closet and double vanity. The custom shower doesn't require a door because it's designed with a unique tiled walkway. Bedroom 2 could be substituted for an office or home gym if needed. It includes a closet, and the full bathroom is connected to the mud room.
Budget Build and Great Investment Home
Small House Plan 80523 is a great investment property because of the simple layout. Firstly, the rectangular shape will make construction fast and easy. Embellish the porch with tapered columns and wood detail in the gable. These cost-effective details bring instant curb-appeal. Vertical white siding has a clean appearance, and it’s easy to find at the building supply store. In-stock building supplies are budget-friendly. In contrast, custom materials are more expensive.
Secondly, two bedroom homes are great rental properties. Renters and young families are often in the market for a 2 bedroom home. If you are planning to build a home to rent out, this one will be snapped up quickly.
Thirdly, it's the perfect starter home plan. Your family will benefit for many years if you choose to build Small House Plan 80523. Though modest in size, this home is perfect for many family stages. A young couple will have a guest room and office. A young family will use the extra bedroom for a nursery. When your family grows, you can build a larger home and rent this one out. When you retire, there’s always the option to downsize and move back in.
Accurate. Fast. Trusted.
Construction Cost Estimates That Save You Time and Money.
With your 30-day online cost-to-build estimate you can start enjoying these benefits today.
Home-Cost.com’s INSTANT™ Cost-To-Build Report also provides you these added features and capabilities:
Ask the Designer any question you may have. NOTE: If you have a plan modification question, please click on the Plan Modifications tab above.
A: Answer: The hot water tank is next to the furnace which is inside the utility closet located in the mudroom. The electrician will determine the location of the electrical panel based on local code requirements.
A: The height of the building from the bottom of the front door to the ridge of the roof is 18'-9" or if measuring from average grade to the ridge of the roof it is 19'-5" (20'-5" for the crawlspace version). The width of the house is 38'-0" and the depth of the house is 26'-0" not including the front porch. The overall building dimensions including the 14'x6' front porch are 38'-0" wide and 32'-0" deep.
A: "The alternate master bath layout is always included in the plans as a detail shown beside the main floor plan."
A: Good afternoon, Yes, the plan set includes header, beam and footing sizes. The plan is designed with a truss layout for the roof framing so there will be no sizing on the plan for rafters and ridge boards. Thank you!
A: Good afternoon, Please see the attached floorplan showing the staircase location for the basement version of plan no.80523. Please note that the depth of the house increases 2 feet for a total of 1,064 sq.ft.
View Attached FileA: Good morning, If the 2x6 exterior wall is deducted from the square footage (actual depth of 2x6 stud is 5.5 inches) then this will reduce the square footage to 930 sq.ft. Please note that this applies to either the crawlspace or slab foundation versions of the plan. We can add this note to the plans if requested on the order. Thank you!
A: Goodmorning, The position of some of the interior walls will need to be adjusted to accommodate 36" doors throughout the house. Here are the current door dimensions for plan #80523: Front Porch Entry 3'-0" Mudroom Entry 2'-6" Bedrooms 5'-0" Main Bathroom and Closet 2'-6" Guest Bathroom and Closet 2'-4" Pantry 2'-0" Coat & Linen Closet 1'-6"
A: Goodmorning, This plan has a trussed roof system and the plans show a 9 foot ceiling height. A vaulted ceiling in the living room can be created by using scissor trusses for that section of the roof and the height at the center of the vault would be 13' 1-1/2". ** If the customer would like us to update the plans to show scissor trusses then the modification fee is $75 (100% to designer) and the timeframe is 1 week.** Thank you!
A: The open concept does not leave a lot of full wall space You could suspend a TV from the wall above any window or door and the TV will be in front of the window or door OR instead of the open concept on either the MBR or Den you could put a regular door that would create a wall for a large TV This would also create a wall on the other side of either the Den or MBR
A: That is a wall oven (either microwave or regular ) at the side. The plan shows a countertop range If you want you can do a stove instead at either location instead of separating them. Or you can have both a full stove and additional wall oven at the side.
A: Goodmorning, Here are the finished dimensions for the master bedrooms and bathrooms: Master bedroom 11'-6" x 12'-0" Master bathroom 11'-6" x 6'-8" Master closet 11'-6" x 6'-0" Guest bedroom 11'-8" x 10'-0" Guest closet 3'-7" x 2'-3" Guest bathroom 7'-9" x 5'-0" not including linen closet area
A: The square footage is calculated from exterior wall to exterior wall. The house (not including the front porch) is 38 feet wide x 26 feet deep which is a total of 988 sq.ft. Also, the dimensions shown inside each room are the finished room size.
A: Please see the attached floorplan of the staircase location for the basement version of Plan Number: 80523. The depth of the house increases 1 foot for a new total of 1,026 sq.ft. The draw time for the basement option is 8-10 business days. The finished basement layout will include a rec room, two bedrooms and a full bathroom. If it is a walkout basement, the walkout doors will be at the front of the house under the living room/bedrooms and the covered porch will become a covered deck. Please let me know if you have any other questions. Have a great afternoon!
View Attached FileA: Yes you can! Please click the "Modifications" tab above to get more information.
A: The national average for a house is running right at $125.00 per SF. You can get more detailed information by clicking the Cost-To-Build tab above. Sorry, but we cannot give cost estimates for garage, multifamily or project plans.
If you find the exact same plan featured on a competitor's web site at a lower price, advertised OR special SALE price, we will beat the competitor's price by 5% of the total, not just 5% of the difference! Our guarantee extends up to 4 weeks after your purchase, so you know you can buy now with confidence.
























