See our garage plan collection. If you order a house and garage plan at the same time, you will get 10% off your total order amount.
Foundation Types:
Crawlspace Slab Stem Wall Slab
Exterior Walls:
2x4 2x6
House Width:
28'0
House Depth:
23'0
Number of Stories:
1
Bedrooms:
1
Full Baths:
1
Max Ridge Height:
16'10 from Front Door Floor Level
Primary Roof Pitch:
8:12
Roof Load:
55 psf
Roof Framing:
Truss
Porch:
168 sq ft
Main Ceiling Height:
9'
Plan Description
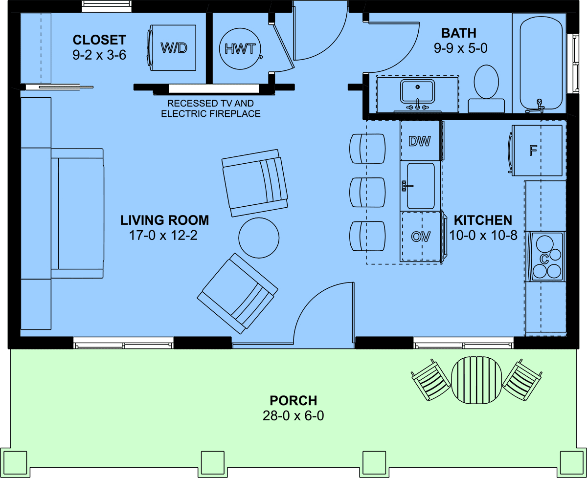
Compact Design with Full Sized Amenities
This thoughtfully designed tiny home features a spacious kitchen with generous storage and ample counter space. A 7 foot peninsula comfortably seats three, making it perfect for casual dining, working from home, or entertaining. Soaring 9 foot ceilings and large windows create a bright, airy atmosphere throughout the home. A sleek 60-inch recessed electric fireplace anchors the main living area with contemporary style. Designed with flexibility in mind, the living space accommodates a murphy bed with integrated sofa and storage, allowing the room to effortlessly transition from daytime living to a cozy sleeping area. A cleverly designed walk in closet houses a stacking washer and dryer, with additional room for storage. The bathroom features a 48-inch-wide vanity. Completing the home is a large covered porch that extends the living space outdoors, making it ideal for relaxing, socializing, or simply enjoying the view.
Special Features:
Front Porch
Open Floor Plan
What's Included?
Square footage calculations are based on total heated space only and will NOT include garages, porches or exterior storage areas. These plans will include ALL of the following:
Exterior Elevation
Detailed Floor Plans
Foundation Plan
Stair Details
Location of Electrical, Plumbing and Heating Fixtures
Cover Sheet
Full Cross Section showing ceiling height and wall details
Roof Plan
Modifications
Receive a FREE modification estimate in one of 3 ways. Our modification team is ready to help you adjust any plan to fit your needs. The ReDesign process is simple and estimates are free!
2. Print, complete and fax this PDF Form to us at 1-800-675-4916.
3. Want to talk to an expert? Call us at 913-938-8097 (Canadian customers, please call 800-361-7526) to discuss modifications.
Note: - a sketch of the changes or the website floor plan marked up to reflect changes is a great way to convey the modifications in addition to a written list.
We Work Fast!
When you submit your ReDesign request, a designer will contact you within 24 business hours with a quote.
You can have your plan redesigned in as little as 14 - 21 days!
We look forward to hearing from you!
Start today planning for tomorrow!
Cost To Build
What will it cost to build your new home?
Let us help you find out!
Family Home Plans has partnered with Home-Cost.com to provide you the most accurate, interactive online estimator available. Home-Cost.com is a proven leader in residential cost estimating software for over 20 years.
No Risk Offer: Order your Home-Cost Estimate now for just $29.95! We will provide you with a discount code in your receipt for when you decide to order any plan on our website than will more than pay you back for ordering an estimate.
Accurate. Fast. Trusted. Construction Cost Estimates That Save You Time and Money.
$29.95 per plan
** Available for U.S. and Canada
With your 30-day online cost-to-build estimate you can start enjoying these benefits today.
INSTANT RESULTS: Immediate turnaround—no need to wait days for a cost report.
RELIABLE: Gain peace of mind and confidence that comes with a reliable cost estimate for your custom home.
INTERACTIVE: Instantly see how costs change as you vary design options and quality levels of materials!
REDUCE RISK: Minimize potential cost overruns by becoming empowered to make smart design decisions. Get estimates that save thousands in costly errors.
PEACE OF MIND: Take the financial guesswork out of building your dream home.
DETAILED COSTING: Detailed, data-backed estimates with +/-120 lines of costs / options for your project.
EDITABLE COSTS: Edit the line-item labor & material price with the “Add/Deduct” field if you want to change a cost.
Ask the Designer any question you may have. NOTE: If you have a plan modification question, please click on the Plan Modifications tab above.
Common Q & A
Q:Can I make modifications to this plan?
A:Yes you can! Please click the "Modifications" tab above to get more information.
Q:What is the estimated price to build this plan?
A:The national average for a house is running right at $125.00 per SF. You can get more detailed information by clicking the Cost-To-Build tab above. Sorry, but we cannot give cost estimates for garage, multifamily or project plans.
FHP Low Price Guarantee
If you find the exact same plan featured on a competitor's web site at a lower price, advertised OR special SALE price, we will beat the competitor's price by 5% of the total, not just 5% of the difference! Our guarantee extends up to 4 weeks after your purchase, so you know you can buy now with confidence.