Orders placed with overnight/2-day shipping may be delayed by two business days due to a review process.
Available Foundation Types:
Basement
: $299.00
May require additional drawing time, please call to confirm before ordering.
Total Living Area may increase with Basement Foundation option.
Crawlspace
: No Additional Fee
Slab
: No Additional Fee
Walkout Basement
: $299.00
May require additional drawing time, please call to confirm before ordering.
Total Living Area may increase with Basement Foundation option.
Basement - * $299.00 Total Living Area may increase with Basement Foundation option. Crawlspace Slab Walkout Basement - * $299.00 Total Living Area may increase with Basement Foundation option.
Exterior Walls:
2x4 2x6 - * $299.00
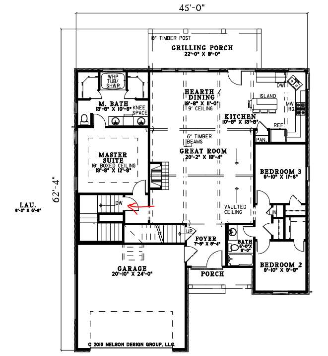
House Width:
45'
House Depth:
62'4
Number of Stories:
1
Bedrooms:
3
Full Baths:
2
Max Ridge Height:
26'10 from Front Door Floor Level
Primary Roof Pitch:
12:12
Roof Load:
45 psf
Roof Framing:
Stick
Porch:
175 sq ft
FirePlace:
Yes
1st Floor Master:
Yes
Main Ceiling Height:
9'
Upper Ceiling Height:
8'
* May require additional drawing time.
Plan Description
An abundance of charm is found throughout this European style home. The foyer leads you to the timber beamed ceiling great room which is open to the dining area and kitchen. The kitchen makes cooking easier with a prep island bar and plenty of counter space. You're sure to find relaxation in the master suite with a 10' boxed ceiling. The master bathroom has a whirlpool tub/shower and features 2 walk-in closets. Bedrooms 2 and 3 share a full bathroom, and upstairs is a large bonus room over the garage.
Special Features:
Bonus Room
Brick or Stone Veneer
Front Porch
Rear Porch
What's Included?
FOUNDATION PLAN Most plans are available with a slab or crawlspace foundation. Optional walkout style basement (three walls masonry with a wood framed rear wall with notes for the builder to locate the windows and doors) and optional full basement foundation available if the plan allows, at an additional cost.
FLOOR PLANS Each home plan includes the floor plan showing the dimensioned locations of walls, doors, and windows as well as a schematic electrical layout (not available for log homes).
SET OF ELEVATIONS All plans include the exterior elevations (front, rear, right and left) that show and describe the finished materials of the house.
MISCELLANEOUS DETAILS These are included for many interior and exterior conditions that require more specific information for their construction.
ROOF OVERVIEW PLAN This is a "bird's eye" view showing the roof slopes, ridges, valleys and any saddles.
SCHEMATIC ELECTRICAL LAYOUT is included unless the plan employs exterior log wall construction.
Modifications
Receive a FREE modification estimate:
Plan modification is a way of turning a stock plan into your unique custom plan. It's still just a small fraction of the price you would pay to create a home plan from scratch. We believe that modification estimates should be FREE!
We provide a modification service so that you can customize your new home plan to fit your budget and lifestyle.
Email Us This is the best and quickest way to get a modification quote!
Please include your Telephone Number, Plan Number, Foundation Type, State you are building in and a Specific List of Changes and Sketch is possible.
It's as simple as that!
Cost To Build
What will it cost to build your new home?
Let us help you find out!
Family Home Plans has partnered with Home-Cost.com to provide you the most accurate, interactive online estimator available. Home-Cost.com is a proven leader in residential cost estimating software for over 20 years.
No Risk Offer: Order your Home-Cost Estimate now for just $29.95! We will provide you with a discount code in your receipt for when you decide to order any plan on our website than will more than pay you back for ordering an estimate.
Accurate. Fast. Trusted. Construction Cost Estimates That Save You Time and Money.
$29.95 per plan
** Available for U.S. and Canada
With your 30-day online cost-to-build estimate you can start enjoying these benefits today.
INSTANT RESULTS: Immediate turnaround—no need to wait days for a cost report.
RELIABLE: Gain peace of mind and confidence that comes with a reliable cost estimate for your custom home.
INTERACTIVE: Instantly see how costs change as you vary design options and quality levels of materials!
REDUCE RISK: Minimize potential cost overruns by becoming empowered to make smart design decisions. Get estimates that save thousands in costly errors.
PEACE OF MIND: Take the financial guesswork out of building your dream home.
DETAILED COSTING: Detailed, data-backed estimates with +/-120 lines of costs / options for your project.
EDITABLE COSTS: Edit the line-item labor & material price with the “Add/Deduct” field if you want to change a cost.
Ask the Designer any question you may have. NOTE: If you have a plan modification question, please click on the Plan Modifications tab above.
Previous Q & A
Q:If this house is built with a basement, where are the basement stairs located?
A:Please see the attached for basement stair location. Please note, when doing basement foundation, laundry room gets removed to make room for basement stairs.
Q:Client understands that with the purchase of the CAD files, he can then order an additional build license through your company to allow him to build up to 5x. What is the cost of the additional build license?
A:Good afternoon, they can purchase PDF files through you guys for 1X build. They then can contact us directly to upgrade to a multi build license. This would be paid directly to us in the amount of $1,500 and will provide for additional builds.
Q:What is the total square footage under roof?
A:Total under roof is 2445.
Q:I cannot decide how the stairs and garage entrance come together. Is there an entrance into the home from the garage in addition to stairs to the upper bonus room?
A:The garage enters the foyer. The other end of the stairs leading up to bonus is a garage storage closet
Q:What are the dimensions of the master bedroom closets?
A:Each is 4’4 x 5’10
Q:Do these plans meet the 2015 international residential code?
A:we have 3 large pages that cover the 2012 IRC which supersedes any potential areas, notes etc. we do not include the 2015 code at this time.
Q:What is the ceiling height in the Foyer and does the plan show a chimney for the fireplace and if so where? Thank you.
A:ceiling height = 10 feet
we call out a gas fireplace NO chimney; no wood burning
Common Q & A
Q:Can I make modifications to this plan?
A:Yes you can! Please click the "Modifications" tab above to get more information.
Q:What is the estimated price to build this plan?
A:The national average for a house is running right at $125.00 per SF. You can get more detailed information by clicking the Cost-To-Build tab above. Sorry, but we cannot give cost estimates for garage, multifamily or project plans.
FHP Low Price Guarantee
If you find the exact same plan featured on a competitor's web site at a lower price, advertised OR special SALE price, we will beat the competitor's price by 5% of the total, not just 5% of the difference! Our guarantee extends up to 4 weeks after your purchase, so you know you can buy now with confidence.