Plan 86833 | Traditional House with 3 Bed, 3 Bath, 2 Car
Call 800-482-0464
Order Code: 00WEB

House Plan 86833

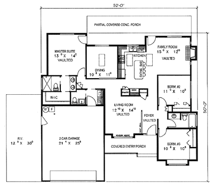
Traditional Style House Plan 86833 with 1605 Sq Ft, 3 Bed, 3 Bath, 2 Car Garage

sq ft

1605

beds

3

baths

3

bays

2

width

52'

depth

50'
Elevation

Elevation

Level One

Level One

Featured Plans