Orders placed with overnight/2-day shipping may be delayed by two business days due to a review process.
Available Foundation Types:
Basement
: $299.00
May require additional drawing time, please call to confirm before ordering.
Total Living Area may increase with Basement Foundation option.
Crawlspace
: No Additional Fee
Slab
: No Additional Fee
Walkout Basement
: $299.00
May require additional drawing time, please call to confirm before ordering.
Total Living Area may increase with Basement Foundation option.
Basement - * $299.00 Total Living Area may increase with Basement Foundation option. Crawlspace Slab Walkout Basement - * $299.00 Total Living Area may increase with Basement Foundation option.
Exterior Walls:
2x4 2x6 - * $299.00
House Width:
76'10
House Depth:
53'4
Number of Stories:
1
Bedrooms:
4
Full Baths:
3
Max Ridge Height:
26'3 from Front Door Floor Level
Primary Roof Pitch:
10:12
Roof Framing:
Stick
Porch:
580 sq ft
Formal Dining Room:
Yes
FirePlace:
Yes
Main Ceiling Height:
9'
Upper Ceiling Height:
8'
* May require additional drawing time.
Plan Description
Contemporary Farmhouse Style House Plan 82389 with 2,373 Sq Ft, 4 Bed, 3 Bath, 2 Car Garage
Discover the perfect blend of modern comfort and timeless charm with this Contemporary Farmhouse Style House Plan 82389. Boasting 2,373 square feet of refined living space, this thoughtfully designed home features 4 spacious bedrooms, 3 full bathrooms, and an attached 2-car garage, making it ideal for families and those who love to entertain.
The striking exterior showcases a welcoming front porch and classic farmhouse appeal, enhanced by traditional siding, a commanding roofline with a 10:12 pitch, and generous use of windows for natural light. The rear porch offers additional outdoor living, creating the perfect setting for morning coffee or evening gatherings.
Step inside to an open floor plan where the great room, kitchen, and dining areas flow seamlessly together. Entertaining is effortless with a large kitchen pantry, formal dining room, and a cozy fireplace anchoring the main living space. Nine-foot ceilings on the main level add a sense of openness and sophistication, while the dedicated mudroom keeps your home organized and clutter-free.
The primary suite is a true retreat, featuring ample space, a luxurious bathroom, and a large walk-in closet. Secondary bedrooms are generously sized and include a convenient Jack and Jill bathroom, providing privacy and functionality for children or guests.
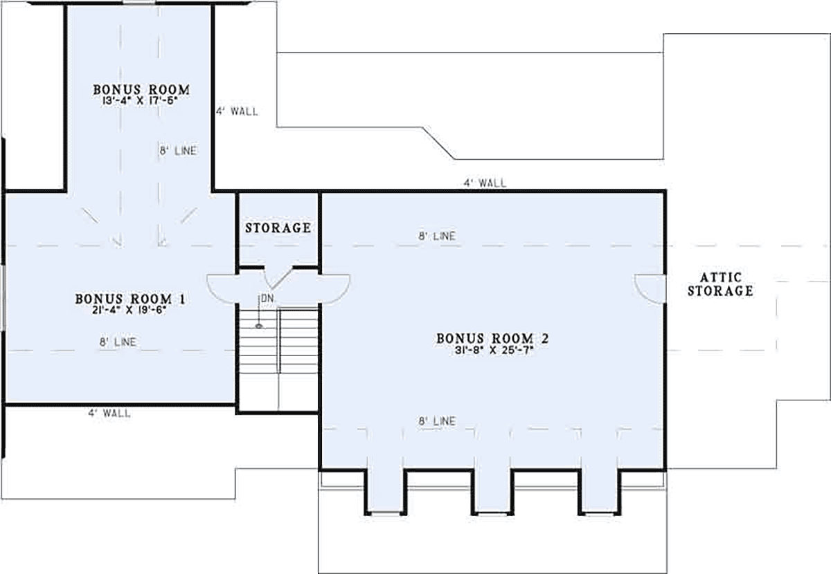
Bonus features include a versatile flex space, private study, and abundant storage options throughout the home. The 1,583 sq ft bonus area offers endless possibilities for a home gym, media room, or guest suite. With options for a basement, crawlspace, slab, or walkout basement foundation, this house plan adapts to your lot and lifestyle needs.
Outdoor living is a highlight with 580 sq ft of porch space, perfect for relaxing or entertaining year-round. Whether you're a growing family, a work-from-home professional, or an avid entertainer, House Plan 82389 delivers the architectural style, space, and features to elevate your daily living. Experience the best in farmhouse-inspired design with all the comforts of modern living.
Special Features:
Entertaining Space
Flex Space
Front Porch
Jack and Jill Bathroom
Mudroom
Open Floor Plan
Pantry
Rear Porch
Storage Space
Study
What's Included?
FOUNDATION PLAN Most plans are available with a slab or crawlspace foundation. Optional walkout style basement (three walls masonry with a wood framed rear wall with notes for the builder to locate the windows and doors) and optional full basement foundation available if the plan allows, at an additional cost.
FLOOR PLANS Each home plan includes the floor plan showing the dimensioned locations of walls, doors, and windows as well as a schematic electrical layout (not available for log homes).
SET OF ELEVATIONS All plans include the exterior elevations (front, rear, right and left) that show and describe the finished materials of the house.
MISCELLANEOUS DETAILS These are included for many interior and exterior conditions that require more specific information for their construction.
ROOF OVERVIEW PLAN This is a "bird's eye" view showing the roof slopes, ridges, valleys and any saddles.
SCHEMATIC ELECTRICAL LAYOUT is included unless the plan employs exterior log wall construction.
Modifications
Receive a FREE modification estimate:
Plan modification is a way of turning a stock plan into your unique custom plan. It's still just a small fraction of the price you would pay to create a home plan from scratch. We believe that modification estimates should be FREE!
We provide a modification service so that you can customize your new home plan to fit your budget and lifestyle.
Email Us This is the best and quickest way to get a modification quote!
Please include your Telephone Number, Plan Number, Foundation Type, State you are building in and a Specific List of Changes and Sketch is possible.
It's as simple as that!
Cost To Build
What will it cost to build your new home?
Let us help you find out!
Family Home Plans has partnered with Home-Cost.com to provide you the most accurate, interactive online estimator available. Home-Cost.com is a proven leader in residential cost estimating software for over 20 years.
No Risk Offer: Order your Home-Cost Estimate now for just $29.95! We will provide you with a discount code in your receipt for when you decide to order any plan on our website than will more than pay you back for ordering an estimate.
Accurate. Fast. Trusted. Construction Cost Estimates That Save You Time and Money.
$29.95 per plan
** Available for U.S. and Canada
With your 30-day online cost-to-build estimate you can start enjoying these benefits today.
INSTANT RESULTS: Immediate turnaround—no need to wait days for a cost report.
RELIABLE: Gain peace of mind and confidence that comes with a reliable cost estimate for your custom home.
INTERACTIVE: Instantly see how costs change as you vary design options and quality levels of materials!
REDUCE RISK: Minimize potential cost overruns by becoming empowered to make smart design decisions. Get estimates that save thousands in costly errors.
PEACE OF MIND: Take the financial guesswork out of building your dream home.
DETAILED COSTING: Detailed, data-backed estimates with +/-120 lines of costs / options for your project.
EDITABLE COSTS: Edit the line-item labor & material price with the “Add/Deduct” field if you want to change a cost.
Ask the Designer any question you may have. NOTE: If you have a plan modification question, please click on the Plan Modifications tab above.
Common Q & A
Q:Can I make modifications to this plan?
A:Yes you can! Please click the "Modifications" tab above to get more information.
Q:What is the estimated price to build this plan?
A:The national average for a house is running right at $125.00 per SF. You can get more detailed information by clicking the Cost-To-Build tab above. Sorry, but we cannot give cost estimates for garage, multifamily or project plans.
FHP Low Price Guarantee
If you find the exact same plan featured on a competitor's web site at a lower price, advertised OR special SALE price, we will beat the competitor's price by 5% of the total, not just 5% of the difference! Our guarantee extends up to 4 weeks after your purchase, so you know you can buy now with confidence.