| Order Code: 00WEB |
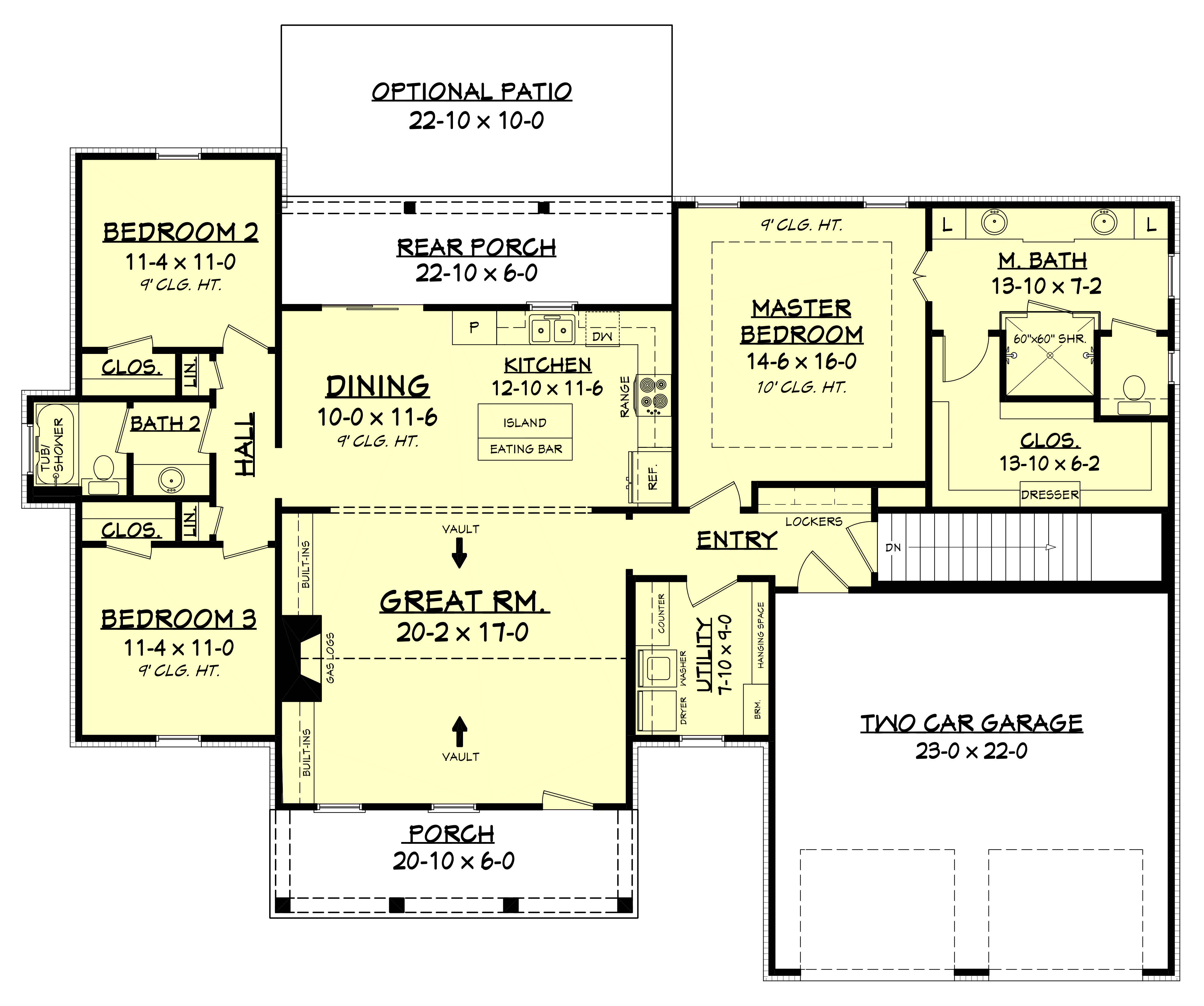
| Total Living Area: | 1745 sq ft |
| Main Living Area: | 1745 sq ft |
| Garage Area: | 554 sq ft |
| Garage Type: | Attached |
| Garage Bays: | 2 |
| Foundation Types: | Basement - * $395.00 Total Living Area may increase with Basement Foundation option. Crawlspace - * $175.00 Slab Walkout Basement - * $395.00 Total Living Area may increase with Basement Foundation option. |
| Exterior Walls: | 2x4 2x6 - * $325.00 |
| House Width: | 67'0 |
| House Depth: | 47'4 |
| Number of Stories: | 1 |
| Bedrooms: | 3 |
| Full Baths: | 2 |
| Max Ridge Height: | 24'0 from Front Door Floor Level |
| Primary Roof Pitch: | 8:12 |
| Roof Load: | 30 psf |
| Roof Framing: | Stick |
| Porch: | 262 sq ft |
| FirePlace: | Yes |
| 1st Floor Master: | Yes |
| Main Ceiling Height: | 9'0 |
Country Craftsman Farmhouse Style House Plan 51985 with 1,745 Sq Ft, 3 Bed, 2 Bath, 2 Car Garage
Experience timeless charm and modern comfort in this Country Craftsman Farmhouse style house plan, offering 1,745 sq ft of well-designed living space. Designed with family in mind, this one-story home features 3 bedrooms, 2 bathrooms, and a spacious attached 2-car garage, blending classic farmhouse appeal with today's most sought-after amenities.Accurate. Fast. Trusted.
Construction Cost Estimates That Save You Time and Money.
With your 30-day online cost-to-build estimate you can start enjoying these benefits today.
Home-Cost.com’s INSTANT™ Cost-To-Build Report also provides you these added features and capabilities:
Ask the Designer any question you may have. NOTE: If you have a plan modification question, please click on the Plan Modifications tab above.
A: The depth only increases by 8". There are no egress windows because the basement is unfinished. An outside exit is only provided in the walkout basement option. The basement option can take up to 5 business days. Call and ask for Bonnie if you would like to place an order.
View Attached FileA: These items could be done, but would require that the roof pitches be adjusted in order to have adequate headroom for a room above. Re-design of the floorplan in order to incorporate a stairway would also be required. Modification services are availabe to the plan by clicking the "Modifications" tab at the top of the page, where you can receive a quote and time frame to make these changes.
A: Yes you can! Please click the "Modifications" tab above to get more information.
A: The national average for a house is running right at $125.00 per SF. You can get more detailed information by clicking the Cost-To-Build tab above. Sorry, but we cannot give cost estimates for garage, multifamily or project plans.
If you find the exact same plan featured on a competitor's web site at a lower price, advertised OR special SALE price, we will beat the competitor's price by 5% of the total, not just 5% of the difference! Our guarantee extends up to 4 weeks after your purchase, so you know you can buy now with confidence.




















