** 1 Set order does not include a License-To-Build. For bidding purposes only. Customer can upgrade order within 90 days. ***There may be a 2 week delay for the CAD file. Please call for turnaround time.***
Available Foundation Types:
Basement
: No Additional Fee
Total Living Area may increase with Basement Foundation option.
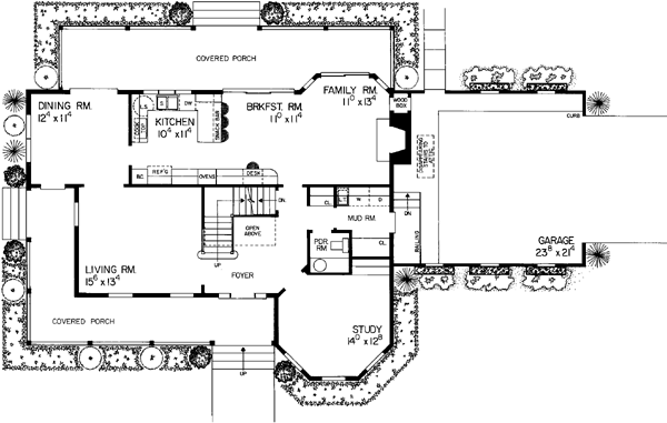
Farmhouse, Victorian Style House Plan 99212 with 2496 Sq Ft, 4 Bed, 3 Bath, 2 Car Garage
What's Included?
Orders do not ship until 36 hours after order is placed.
Each set of homeplans that we offer will provide you with the necessary information to build the home. There may be some adjustments necessary to the home plans or garage plans in order to comply with your state or county building codes. The following list shows what is included within each set of home plans that we sell. Depending on the home designer there might be more home building information provided. Our blueprints include:
Exterior Elevations: Shows the front, rear and sides of the home including exterior materials, details and measurement.
Detailed Home Floor Plans: Shows the placement of walls and the dimensions for rooms, doors, windows, stairways, etc. for each level of theme.
Electrical Schematic: Shows the location of outlets, fixtures and switches. It may be shown as a separate sheet or be included on the home floor plans.
Foundation Plan: Home plans will show a basement, crawlspace or slab depending on what is available for that home plan. (Please refer to the home plan's details sheet to see what foundation options are available for a specific homeplan.) The foundation plan details the layout and construction of the foundation.
Due to regional variations it is impossible to include much detail about heating, plumbing and electrical work. Ductwork, venting and other details vary depending on the type of HVAC system and the type of energy used. These details and specifications are easily obtained from your home builder, contractor or local supplier. Also not included is a separate framing plan or materials list. These items, if available from the home designer can be purchased for an additional cost. The details sheet for each home plan lists the costs and which items are available.
Modifications
Plan modification is a way of turning a stock plan into your unique custom plan. It's still just a small fraction of the price you would pay to create a home plan from scratch. You will receive a FREE, no obligation, modification estimate to get exactly the home plan you've been dreaming of. Simply contact the modification department 1 of 3 ways:
Call 866-465-5866 and talk to a live person that can give you and FREE modification estimate over the phone!
Email Us - Please Include your telephone number, plan number, foundation type, state you are building in and a specific list of changes.
Fax: 651-602-5050 - Make sure to include a cover sheet with your contact info. Make attention to the FamilyHomePlans.com Modification Department.
Cost To Build
What will it cost to build your new home?
Let us help you find out!
Family Home Plans has partnered with Home-Cost.com to provide you the most accurate, interactive online estimator available. Home-Cost.com is a proven leader in residential cost estimating software for over 20 years.
No Risk Offer: Order your Home-Cost Estimate now for just $29.95! We will provide you with a discount code in your receipt for when you decide to order any plan on our website than will more than pay you back for ordering an estimate.
Accurate. Fast. Trusted. Construction Cost Estimates That Save You Time and Money.
$29.95 per plan
** Available for U.S. and Canada
With your 30-day online cost-to-build estimate you can start enjoying these benefits today.
INSTANT RESULTS: Immediate turnaround—no need to wait days for a cost report.
RELIABLE: Gain peace of mind and confidence that comes with a reliable cost estimate for your custom home.
INTERACTIVE: Instantly see how costs change as you vary design options and quality levels of materials!
REDUCE RISK: Minimize potential cost overruns by becoming empowered to make smart design decisions. Get estimates that save thousands in costly errors.
PEACE OF MIND: Take the financial guesswork out of building your dream home.
DETAILED COSTING: Detailed, data-backed estimates with +/-120 lines of costs / options for your project.
EDITABLE COSTS: Edit the line-item labor & material price with the “Add/Deduct” field if you want to change a cost.
Ask the Designer any question you may have. NOTE: If you have a plan modification question, please click on the Plan Modifications tab above.
Common Q & A
Q:Can I make modifications to this plan?
A:Yes you can! Please click the "Modifications" tab above to get more information.
Q:What is the estimated price to build this plan?
A:The national average for a house is running right at $125.00 per SF. You can get more detailed information by clicking the Cost-To-Build tab above. Sorry, but we cannot give cost estimates for garage, multifamily or project plans.
FHP Low Price Guarantee
If you find the exact same plan featured on a competitor's web site at a lower price, advertised OR special SALE price, we will beat the competitor's price by 5% of the total, not just 5% of the difference! Our guarantee extends up to 4 weeks after your purchase, so you know you can buy now with confidence.