4-Unit Multiplex Plans – Versatile Multi-Family Designs
Call 800-482-0464

4 Unit Multi-Plex Plans

Our 4-Unit Multiplex Plans provide functional and versatile layouts for growing multi-family needs. These fourplex designs balance efficiency and livability, offering excellent rental potential and long-term investment value. Perfect for builders, developers, or landlords, each unit is designed for comfort and style while maintaining cost-effective construction. Explore this collection to find a fourplex plan that meets your goals.

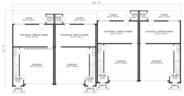
Plan 61292

45 Plans

3316 Htd Sq Ft
62' x 30'
8 Bed 4.5 Bath
3920 Htd Sq Ft
82' x 33'
8 Bed 8.5 Bath
2176 Htd Sq Ft
32'0" x 39'0"
4 Bed 4 Bath
2940 Htd Sq Ft
104'0" x 33'4"
8 Bed 4 Bath
4517 Htd Sq Ft
74'0 x 34'0
8 Bed 5.5 Bath
4618 Htd Sq Ft
76'0 x 32'8
8 Bed 4.5 Bath
4712 Htd Sq Ft
84' x 29'
10 Bed 4.5 Bath
4764 Htd Sq Ft
80'1" x 53'5"
8 Bed 8.5 Bath
6844 Htd Sq Ft
101'4 x 43'0
12 Bed 8.5 Bath
4160 Htd Sq Ft
71'8 x 31'
8 Bed 8.5 Bath
4160 Htd Sq Ft
71'8 x 31'
8 Bed 8 Bath
4212 Htd Sq Ft
71'8 x 32'
8 Bed 8 Bath
4212 Htd Sq Ft
71'8 x 32'
8 Bed 8 Bath
5032 Htd Sq Ft
56' x 54'
12 Bed 8 Bath
5196 Htd Sq Ft
98' x 30'
8 Bed 8.5 Bath
5400 Htd Sq Ft
90' x 30'
10 Bed 6.5 Bath
5456 Htd Sq Ft
73' x 39'8
8 Bed 8.5 Bath
6040 Htd Sq Ft
85' x 52'2
8 Bed 8.5 Bath
6408 Htd Sq Ft
85' x 52'2
8 Bed 8.5 Bath
7504 Htd Sq Ft
101' x 47'9
12 Bed 8.5 Bath
4375 Htd Sq Ft
41'9 x 70'1
12 Bed 4.5 Bath
4776 Htd Sq Ft
74'8 x 32'
8 Bed 4.5 Bath
5769 Htd Sq Ft
97' x 42'6
12 Bed 8.5 Bath
1277 Htd Sq Ft
88'0 x 38'0
3 Bed 1.5 Bath

Results Page Number