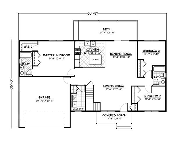
You’ll appreciate the free flowing nature of this ranch styled home.
Covered Porch – Turned columns grace the front of the covered front porch adding to the charm of the home.
Kitchen – This L-shaped kitchen with large center island is a cook’s dream. The room is designed to have it open to both the living and dining areas, making interaction between the cook and the rest of the family during mealtime prep easy.
Dining Room – The casual layout of this room, along with the sliding glass door to the rear deck, makes family dining, as well as, formal dinner parties more enjoyable. With an expansive rear deck, just off the dining room, the decision to dine indoors or out will be a difficult one to make.
Living Room – Step from the covered porch into this gracious room, which is sure to be the central gathering spot for all.
Master Suite - Featuring an en-suite bath, and large walk in closet, this expansive room has a touch more privacy, as it is set apart from the secondary bedrooms in the home.
Secondary Bedrooms – Off a small hallway are two moderately sized secondary bedrooms and a full bath.
The open layout that is found in this home along with simple design elements allows this home to be affordably built. For the ever-changing family dynamics this home can be easily expanded.
Special Features:
Deck or Patio
Front Porch
What's Included?
Our Plans contain the following pages: C-1 - Color Cover A-1 - Foundation Plan A-2 - Main Level Floor Plan A-2.1 - Upper Level Floor Plan (if applicable) A-3 - Exterior Elevations A-4 - Exterior Elevations A-5 - Roof Plan A-6 - Building Sections D-1 - Construction Details S-1 - Main Level Structural Framing Plan S-2.1 - Upper Level Structural Framing Plan (if applicable) S-2 - Ceiling Structural Framing Plan S-3 - Roof Structural Framing Plan E-1 - Lighting Fixture and Outlet Plan
Modifications
Receive a FREE modification estimate in one of 3 ways. Our modification team is ready to help you adjust any plan to fit your needs. The ReDesign process is simple and estimates are free!
2. Print, complete and fax this PDF Form to us at 1-800-675-4916.
3. Want to talk to an expert? Call us at 913-938-8097 (Canadian customers, please call 800-361-7526) to discuss modifications.
Note: - a sketch of the changes or the website floor plan marked up to reflect changes is a great way to convey the modifications in addition to a written list.
We Work Fast!
When you submit your ReDesign request, a designer will contact you within 24 business hours with a quote.
You can have your plan redesigned in as little as 14 - 21 days!
We look forward to hearing from you!
Start today planning for tomorrow!
Cost To Build
What will it cost to build your new home?
Let us help you find out!
Family Home Plans has partnered with Home-Cost.com to provide you the most accurate, interactive online estimator available. Home-Cost.com is a proven leader in residential cost estimating software for over 20 years.
No Risk Offer: Order your Home-Cost Estimate now for just $29.95! We will provide you with a discount code in your receipt for when you decide to order any plan on our website than will more than pay you back for ordering an estimate.
Accurate. Fast. Trusted. Construction Cost Estimates That Save You Time and Money.
$29.95 per plan
** Available for U.S. and Canada
With your 30-day online cost-to-build estimate you can start enjoying these benefits today.
INSTANT RESULTS: Immediate turnaround—no need to wait days for a cost report.
RELIABLE: Gain peace of mind and confidence that comes with a reliable cost estimate for your custom home.
INTERACTIVE: Instantly see how costs change as you vary design options and quality levels of materials!
REDUCE RISK: Minimize potential cost overruns by becoming empowered to make smart design decisions. Get estimates that save thousands in costly errors.
PEACE OF MIND: Take the financial guesswork out of building your dream home.
DETAILED COSTING: Detailed, data-backed estimates with +/-120 lines of costs / options for your project.
EDITABLE COSTS: Edit the line-item labor & material price with the “Add/Deduct” field if you want to change a cost.
Ask the Designer any question you may have. NOTE: If you have a plan modification question, please click on the Plan Modifications tab above.
Common Q & A
Q:Can I make modifications to this plan?
A:Yes you can! Please click the "Modifications" tab above to get more information.
Q:What is the estimated price to build this plan?
A:The national average for a house is running right at $125.00 per SF. You can get more detailed information by clicking the Cost-To-Build tab above. Sorry, but we cannot give cost estimates for garage, multifamily or project plans.
FHP Low Price Guarantee
If you find the exact same plan featured on a competitor's web site at a lower price, advertised OR special SALE price, we will beat the competitor's price by 5% of the total, not just 5% of the difference! Our guarantee extends up to 4 weeks after your purchase, so you know you can buy now with confidence.