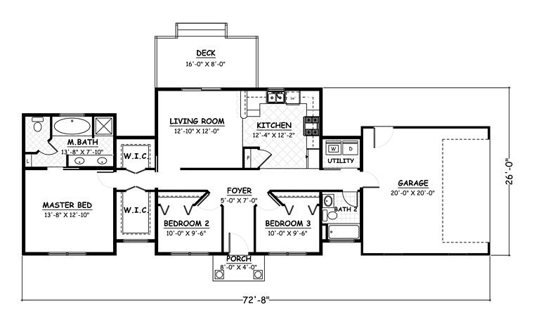
A spacious feeling is generated in this home by its generous rooms and excellent design.
Master Suite – Privacy is assured in this master suite as it is separated from the main part of the house. A separate bath and his / her walk-in closets add convenience as well as luxury.
Master Bath – Features a sunlit whirlpool tub, separate shower, private toilet and dual sink vanity. These many amenities will soothe you at the end of a busy day.
Kitchen – The large pantry will keep the cook organized with plenty of storage space. The rest of the family will enjoy the companionship that the snack bar encourages.
Dining Room – Directly across from the kitchen, the dining room also has a set of sliding glass doors onto the large deck.
Living Room – This large room is open to the kitchen and offers sliding glass doors to rear deck. The open floor plan will ensure that is becomes the central gathering place for the entire family.
Secondary Bedrooms – Two additional bedrooms and a full bath complete the private areas of the home. A nearby utility room makes the home complete.
The unique floor plan is sure to please all members of the family. It also allows for future expansion that will accommodate all.
Special Features:
Deck or Patio
What's Included?
Our Plans contain the following pages: C-1 - Color Cover A-1 - Foundation Plan A-2 - Main Level Floor Plan A-2.1 - Upper Level Floor Plan (if applicable) A-3 - Exterior Elevations A-4 - Exterior Elevations A-5 - Roof Plan A-6 - Building Sections D-1 - Construction Details S-1 - Main Level Structural Framing Plan S-2.1 - Upper Level Structural Framing Plan (if applicable) S-2 - Ceiling Structural Framing Plan S-3 - Roof Structural Framing Plan E-1 - Lighting Fixture and Outlet Plan
Modifications
Receive a FREE modification estimate in one of 3 ways. Our modification team is ready to help you adjust any plan to fit your needs. The ReDesign process is simple and estimates are free!
2. Print, complete and fax this PDF Form to us at 1-800-675-4916.
3. Want to talk to an expert? Call us at 913-938-8097 (Canadian customers, please call 800-361-7526) to discuss modifications.
Note: - a sketch of the changes or the website floor plan marked up to reflect changes is a great way to convey the modifications in addition to a written list.
We Work Fast!
When you submit your ReDesign request, a designer will contact you within 24 business hours with a quote.
You can have your plan redesigned in as little as 14 - 21 days!
We look forward to hearing from you!
Start today planning for tomorrow!
Cost To Build
What will it cost to build your new home?
Let us help you find out!
Family Home Plans has partnered with Home-Cost.com to provide you the most accurate, interactive online estimator available. Home-Cost.com is a proven leader in residential cost estimating software for over 20 years.
No Risk Offer: Order your Home-Cost Estimate now for just $29.95! We will provide you with a discount code in your receipt for when you decide to order any plan on our website than will more than pay you back for ordering an estimate.
Accurate. Fast. Trusted. Construction Cost Estimates That Save You Time and Money.
$29.95 per plan
** Available for U.S. and Canada
With your 30-day online cost-to-build estimate you can start enjoying these benefits today.
INSTANT RESULTS: Immediate turnaround—no need to wait days for a cost report.
RELIABLE: Gain peace of mind and confidence that comes with a reliable cost estimate for your custom home.
INTERACTIVE: Instantly see how costs change as you vary design options and quality levels of materials!
REDUCE RISK: Minimize potential cost overruns by becoming empowered to make smart design decisions. Get estimates that save thousands in costly errors.
PEACE OF MIND: Take the financial guesswork out of building your dream home.
DETAILED COSTING: Detailed, data-backed estimates with +/-120 lines of costs / options for your project.
EDITABLE COSTS: Edit the line-item labor & material price with the “Add/Deduct” field if you want to change a cost.
Ask the Designer any question you may have. NOTE: If you have a plan modification question, please click on the Plan Modifications tab above.
Previous Q & A
Q:Can the living room wall be removed or is it load bearing?
A:The Living wall does not bear the roof rafters but it does bear the ceiling joist. Since the ceiling load is relatively small, the wall can be replace by a flush 14 foot glu-lam in the ceiling.
Common Q & A
Q:Can I make modifications to this plan?
A:Yes you can! Please click the "Modifications" tab above to get more information.
Q:What is the estimated price to build this plan?
A:The national average for a house is running right at $125.00 per SF. You can get more detailed information by clicking the Cost-To-Build tab above. Sorry, but we cannot give cost estimates for garage, multifamily or project plans.
FHP Low Price Guarantee
If you find the exact same plan featured on a competitor's web site at a lower price, advertised OR special SALE price, we will beat the competitor's price by 5% of the total, not just 5% of the difference! Our guarantee extends up to 4 weeks after your purchase, so you know you can buy now with confidence.