Plan 45434 | Cape Cod House with 3 Bed, 3 Bath
Call 800-482-0464
Order Code: 00WEB

House Plan 45434

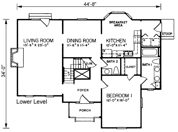
Cape Cod Style House Plan 45434 with 1788 Sq Ft, 3 Bed, 3 Bath

sq ft

1788

beds

3

baths

2.5

bays

0

width

45'

depth

34'
Elevation

Elevation

Level One

Level One

Level Two

Level Two

Featured Plans