Plan 61042 | Colonial, Southern House with 4 Bed, 5 Bath, 3 Car
Call 800-482-0464
Order Code: 00WEB

House Plan 61042

Southern Style, 3740 Sq Ft, 4 Bed, 5 Bath, 3 Car | Plan 61042

sq ft

3740

beds

4

baths

4.5

bays

3

width

92'

depth

64'
Elevation

Elevation

Photographs may show modified designs.
Level One

Level One

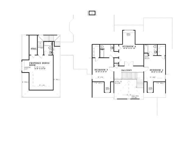
Level Two

Level Two

Rear Elevation

Rear Elevation

Photographs may show modified designs. Image quality may be compromised.

Featured Plans