Plan 63597 | Craftsman, Traditional House with 4 Bed, 3 Bath, 4 Car
Call 800-482-0464
Order Code: 00WEB

House Plan 63597

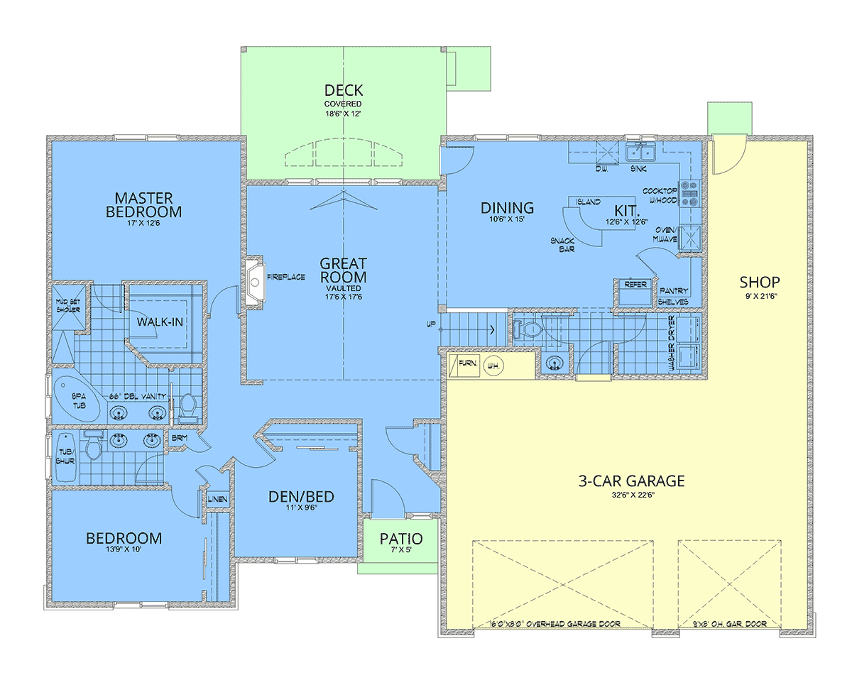
Traditional Style, 2335 Sq Ft, 4 Bed, 3 Bath, 4 Car | Plan 63597

sq ft

2335

beds

4

baths

2.5

bays

4

width

68'

depth

53'
Elevation

Elevation

Photographs may show modified designs.
Level One

Level One

Level Two

Level Two

Rear Elevation

Rear Elevation

Photographs may show modified designs. Image quality may be compromised.

Featured Plans