Basement
: $495.00
May require additional drawing time, please call to confirm before ordering.
Total Living Area may increase with Basement Foundation option.
Crawlspace
: No Additional Fee
Slab
: $350.00
May require additional drawing time, please call to confirm before ordering.
Stem Wall Slab
: $350.00
May require additional drawing time, please call to confirm before ordering.
Walkout Basement
: $525.00
May require additional drawing time, please call to confirm before ordering.
Total Living Area may increase with Basement Foundation option.
Basement - * $495.00 Total Living Area may increase with Basement Foundation option. Crawlspace Slab - * $350.00 Stem Wall Slab - * $350.00 Walkout Basement - * $525.00 Total Living Area may increase with Basement Foundation option.
Exterior Walls:
2x4
House Width:
81'10
House Depth:
77'10
Number of Stories:
1
Bedrooms:
4
Full Baths:
3
Max Ridge Height:
mrh from Front Door Floor Level
Primary Roof Pitch:
8:12
Roof Load:
40 psf
Roof Framing:
Truss
Porch:
1140 sq ft
Formal Dining Room:
Yes
FirePlace:
Yes
1st Floor Master:
Yes
Main Ceiling Height:
9'
Upper Ceiling Height:
8'
Vaulted Ceiling:
Yes
Tray Ceiling:
Yes
* May require additional drawing time.
Plan Description
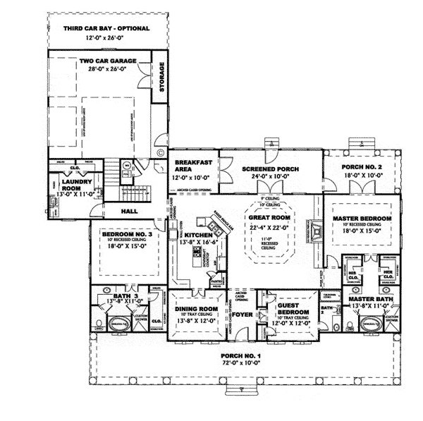
Three Porches are the highlight of this classic design.
Dual Master Bedrooms with FULL spa baths and walk-in closets, make this plan unique. The second Master could be used for the Grandparents, Guests or that boomerang child. Each bedroom ceiling is recessed to 10' for an elegant open feeling. The Master Bedroom has a wide covered porch accessed by double French doors.
The Guest Bedroom has a private bath and a 10' tray ceiling.
The Great Room is great for entertaining with a gas fireplace flanked with built-in cabinets and a special 11' recessed ceiling. Accesses to the screened back porch make this a great home for entertaining or just relaxing with the family.
The angled snack bar, island cook top, wall oven, and angled pantry make this kitchen a chef’s dream. With lots of cabinets for storage this is truly the heart of the home.
The sunny Breakfast Area is located close to the Kitchen and has access to the screened porch for morning coffee.
A 10' Tray ceiling is the highlight of the Formal Dining Room.
The large Laundry Room has cabinets with a large storage closet and room for a freezer.
The Garage is an optional 2 or 3 car with storage and a bonus room above.
What's Included?
View Sample Plan
Sample Plan may not actually be Plan 64525. It is just an example of this designer's contruction documents.
Floor plans - Included with your plans will be a detailed floor plan at 1/4" scale with a window and door schedule.
Foundation Plan - On many of our plans we offer you options on the type of foundation. The available options for each plan are shown on the page with the plans.
Electrical Plan - This sheet will show the locations of all lights, receptacles, switches, etc. as well as a roof layout.
Exterior Elevations - Our plans include complete front, sides and rear views, as well as any special exterior details.
Interior Elevations of cabinets, cabinet details, columns and walls with unique conditions.
Building Sections, Details and Typical Specifications Sheets
Plumbing diagrams and HVAC plans are not available for these homes, since they are generally not needed for home construction and since each county's code will vary and a licensed plumber and/or electrician must follow the codes.
Modifications
Receive a FREE modification estimate in one of 3 ways. Our modification team is ready to help you adjust any plan to fit your needs. The ReDesign process is simple and estimates are free!
2. Print, complete and fax this PDF Form to us at 1-800-675-4916.
3. Want to talk to an expert? Call us at 913-938-8097 (Canadian customers, please call 800-361-7526) to discuss modifications.
Note: - a sketch of the changes or the website floor plan marked up to reflect changes is a great way to convey the modifications in addition to a written list.
We Work Fast!
When you submit your ReDesign request, a designer will contact you within 24 business hours with a quote.
You can have your plan redesigned in as little as 14 - 21 days!
We look forward to hearing from you!
Start today planning for tomorrow!
Cost To Build
What will it cost to build your new home?
Let us help you find out!
Family Home Plans has partnered with Home-Cost.com to provide you the most accurate, interactive online estimator available. Home-Cost.com is a proven leader in residential cost estimating software for over 20 years.
No Risk Offer: Order your Home-Cost Estimate now for just $29.95! We will provide you with a discount code in your receipt for when you decide to order any plan on our website than will more than pay you back for ordering an estimate.
Accurate. Fast. Trusted. Construction Cost Estimates That Save You Time and Money.
$29.95 per plan
** Available for U.S. and Canada
With your 30-day online cost-to-build estimate you can start enjoying these benefits today.
INSTANT RESULTS: Immediate turnaround—no need to wait days for a cost report.
RELIABLE: Gain peace of mind and confidence that comes with a reliable cost estimate for your custom home.
INTERACTIVE: Instantly see how costs change as you vary design options and quality levels of materials!
REDUCE RISK: Minimize potential cost overruns by becoming empowered to make smart design decisions. Get estimates that save thousands in costly errors.
PEACE OF MIND: Take the financial guesswork out of building your dream home.
DETAILED COSTING: Detailed, data-backed estimates with +/-120 lines of costs / options for your project.
EDITABLE COSTS: Edit the line-item labor & material price with the “Add/Deduct” field if you want to change a cost.
Ask the Designer any question you may have. NOTE: If you have a plan modification question, please click on the Plan Modifications tab above.
Common Q & A
Q:Can I make modifications to this plan?
A:Yes you can! Please click the "Modifications" tab above to get more information.
Q:What is the estimated price to build this plan?
A:The national average for a house is running right at $125.00 per SF. You can get more detailed information by clicking the Cost-To-Build tab above. Sorry, but we cannot give cost estimates for garage, multifamily or project plans.
FHP Low Price Guarantee
If you find the exact same plan featured on a competitor's web site at a lower price, advertised OR special SALE price, we will beat the competitor's price by 5% of the total, not just 5% of the difference! Our guarantee extends up to 4 weeks after your purchase, so you know you can buy now with confidence.