Plan 77426 | Barndominium House with 2 Bed, 2 Bath, 3 Car
Call 800-482-0464
Order Code: 00WEB

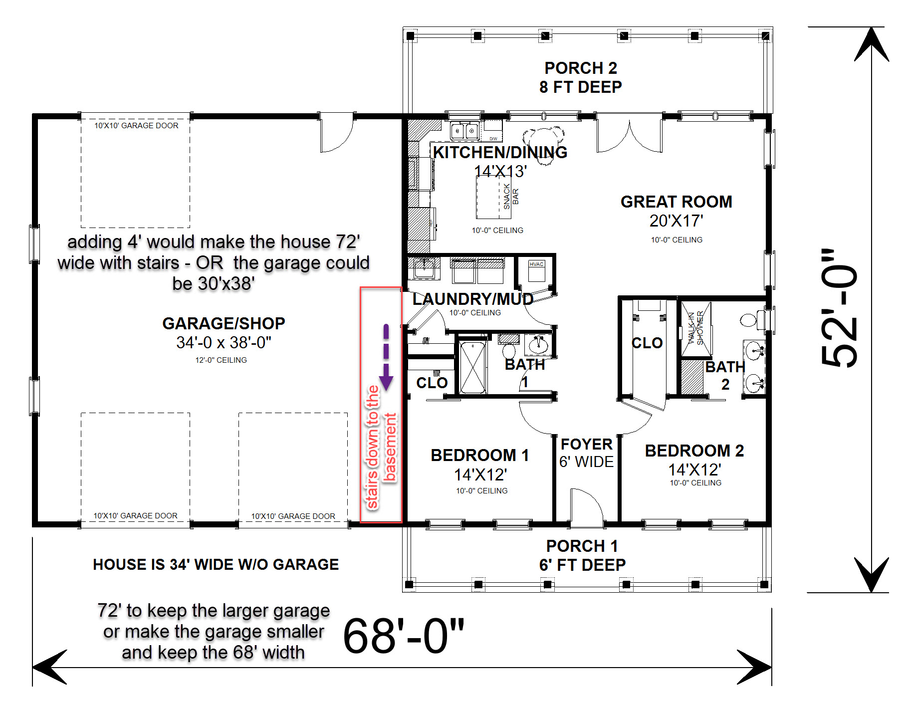
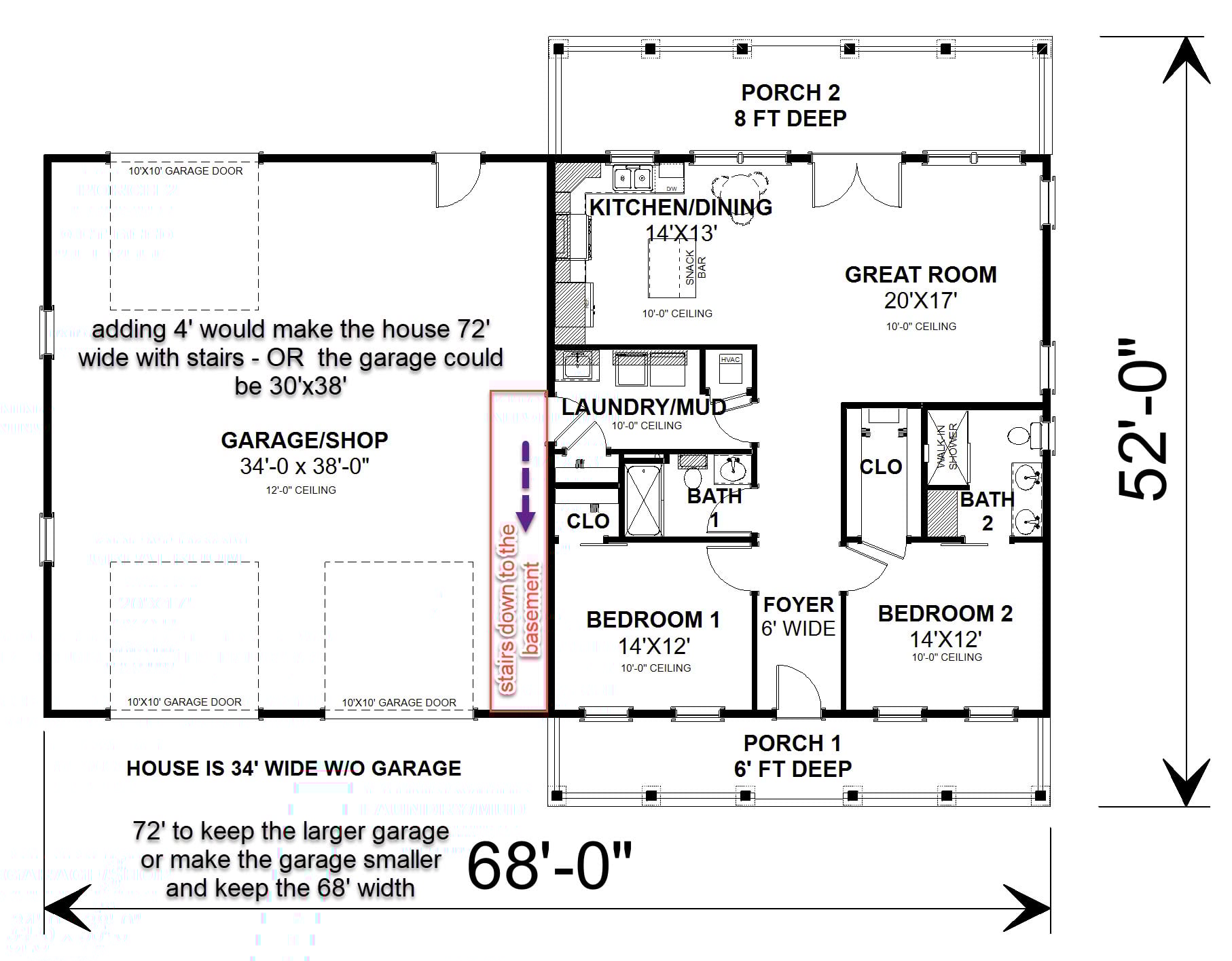
House Plan 77426

Barndominium Style House Plan 77426 with 1292 Sq Ft, 2 Bed, 2 Bath, 3 Car Garage

sq ft

1292

beds

2

baths

2

bays

3

width

68'

depth

52'
Elevation

Elevation

Photographs may show modified designs.
Level One

Level One

Rear Elevation

Rear Elevation

Photographs may show modified designs. Image quality may be compromised.

Related Plans

Featured Plans