| Order Code: 00WEB |
| Total Living Area: | 1901 sq ft |
| Main Living Area: | 1901 sq ft |
| Bonus Area: | 574 sq ft |
| Garage Area: | 944 sq ft |
| Garage Type: | Attached |
| Garage Bays: | 3 |
| Foundation Types: | Basement - * $299.00 Total Living Area may increase with Basement Foundation option. Crawlspace Slab Walkout Basement - * $299.00 Total Living Area may increase with Basement Foundation option. |
| Exterior Walls: | 2x4 2x6 - * $299.00 |
| House Width: | 78'8 |
| House Depth: | 78'0 |
| Number of Stories: | 1 |
| Bedrooms: | 4 |
| Full Baths: | 2 |
| Half Baths: | 1 |
| Max Ridge Height: | 29'0 from Front Door Floor Level |
| Primary Roof Pitch: | 12:12 |
| Roof Load: | 45 psf |
| Roof Framing: | Stick |
| Porch: | 329 sq ft |
| Formal Dining Room: | Yes |
| FirePlace: | Yes |
| Main Ceiling Height: | 9'0 |
French Country Home Plan with Outdoor Living and Grilling Porch
French Country Home Plan 82449 has just enough space for the whole family without giving you more than you need. As you drive up to this beautiful new home you will be struck by the beautifully blended siding of brick and stone as well as the accents of window shutters and beautiful garage doors. In total, the living space is 1,901 square feet with 4 bedrooms and 2.5 bathrooms.
French Country Home Plan With Outdoor Fireplace
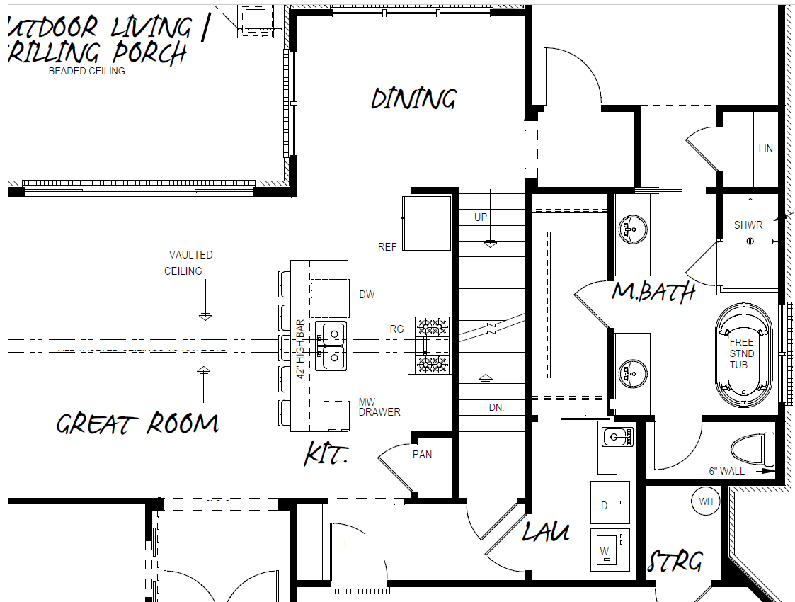
Step into this home and head to the spacious great room which has a beautiful vaulted ceiling with timber beams and a cozy fireplace. This room flows seamlessly into the kitchen through a five person eat-at-bar making this space perfect for entertaining. There is a dining room connected to the kitchen as well as a convenient walk-in pantry. Plus, there is a great outdoor living space with a fireplace adding even more entertaining space. Enjoy the warmth of the outdoor fireplace on chilly fall evenings.
You can access the 3-car garage from the kitchen through a hall with a bench and hooks making this a great mudroom. Use the small storage room in the garage to house your water heater. Or, use this space as a safe room to keep your valuables. Back inside, you can also access the laundry room from the aforementioned hall. It includes a utility sink for soaking extra-dirty laundry.
4 Bedrooms / Optional Study
Tucked away in the right side of French Country Home Plan 82449 is the master suite which has a great vaulted ceiling and spacious master bath complete with dual vanities, glass shower, separate whirlpool tub and a walk-in closet. You can even get to the laundry room through this closet. Homeowners are finding this arrangement so convenient that it's sure to become a regular feature in most new home designs. You will love being able to drop of your laundry straight from the closet to the washer.
On the opposite side of the home are bedrooms 2, 3 and 4 as well as a hall bath. Bedroom 2 can be used as a home study with an optional entrance from the foyer through barn doors. These rooms have good closet space, and the bathroom is helpful because it includes a double sink. Find a small linen closet at the end of the hallway to store extra towels and bedsheets. Upstairs is a bonus room located above the garage along with a half bath.
Accurate. Fast. Trusted.
Construction Cost Estimates That Save You Time and Money.
With your 30-day online cost-to-build estimate you can start enjoying these benefits today.
Home-Cost.com’s INSTANT™ Cost-To-Build Report also provides you these added features and capabilities:
Ask the Designer any question you may have. NOTE: If you have a plan modification question, please click on the Plan Modifications tab above.
A: On this particular plan, the dormer does not shine into foyer but with a modification onsite with builder or with us, it could be made to do this. The ceiling would have to be made higher and the dormer would need to be pushed back a little further.
A: Hello, thank you for your interest in our home plan design. When the basement option is chosen, the pantry becomes a reach in pantry barely 2’ deep. The beams are for looks only and can be removed
View Attached FileA: See attached, this is where basement stairs go
View Attached FileA: Good morning, Since the WOB foundation is optional on this plan, we do not have a floorplan showing heated/cooled space or windows and doors for basement level. You would only receive the foundation page in which would show unfinished space that mirrors the main level heated/cooled sqft. The foundation page would have a note that states to “see owner/builder for window & door placement”. If you prefer a floorplan for basement level showing heated/cooled space or calling out location and sizes of windows and door, this will have to be achieved through our modification process.
A: yes, there is a three foot covered porch at front door
A: The basement is an optional add on foundation, so we do not have drawings showing it. However it would be unfinished space that mirrors the main level living space unless you want a modification to show the basement finished.
A: The basement is an optional add on and unfinished; the space would mirror the main floor space.
A: I’m sorry, but we do not currently have these photos available.
A: The doors are 3’ openings, and the bathrooms could be changed as needed by modifications.
A: Yes.
A: We do not have a simple rear elevation available for this plan yet.
A: Yes you can! Please click the "Modifications" tab above to get more information.
A: The national average for a house is running right at $125.00 per SF. You can get more detailed information by clicking the Cost-To-Build tab above. Sorry, but we cannot give cost estimates for garage, multifamily or project plans.
If you find the exact same plan featured on a competitor's web site at a lower price, advertised OR special SALE price, we will beat the competitor's price by 5% of the total, not just 5% of the difference! Our guarantee extends up to 4 weeks after your purchase, so you know you can buy now with confidence.






















