| Order Code: 00WEB |
| Total Living Area: | 2031 sq ft |
| Main Living Area: | 2031 sq ft |
| Bonus Area: | 406 sq ft |
| Garage Area: | 524 sq ft |
| Garage Type: | Attached |
| Garage Bays: | 2 |
| Foundation Types: | Basement - * $299.00 Total Living Area may increase with Basement Foundation option. Crawlspace Slab Walkout Basement - * $399.00 Total Living Area may increase with Basement Foundation option. |
| Exterior Walls: | 2x4 2x6 - * $299.00 |
| House Width: | 70'6 |
| House Depth: | 56'2 |
| Number of Stories: | 1 |
| Bedrooms: | 3 |
| Full Baths: | 2 |
| Half Baths: | 1 |
| Max Ridge Height: | 27'0 from Front Door Floor Level |
| Primary Roof Pitch: | 8:12 |
| Roof Load: | 45 psf |
| Roof Framing: | Stick |
| Porch: | 740 sq ft |
| Formal Dining Room: | Yes |
| FirePlace: | Yes |
| 1st Floor Master: | Yes |
| Main Ceiling Height: | 9' |
| Upper Ceiling Height: | 8' |
Country Farmhouse Plan With 2031 SQ FT
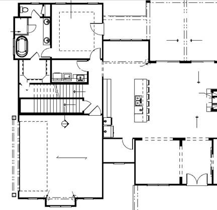
Country Farmhouse Plan 82542 offers just over 2,000 square feet of living space with 3 bedrooms, 2 full bathrooms, and 1 half bath. This charming floor plan has great curb appeal with a lovely covered porch upheld with wide white columns. On the inside of the home you are going to find plenty of space for the kiddos and a lovely open floor plan that incorporates the kitchen, great room, and the breakfast room. Out back you will find an amazing grilling porch with outdoor fireplace.
Country Farmhouse Plan With Open Floor Plan
Country Farmhouse Plan 82542 appeals to homebuyers for several reasons.
Firstly, it has open living space. Entering the foyer, we find a formal dining room to the left. However, it's not fully-enclosed, and wide openings lead into the open living space. The ceiling is vaulted, so the area feels even larger. In addition, faux beams create interest on the ceiling. The fireplace anchors the space. Seat six people at the huge kitchen island. Plus, the kitchen island offers abundant prep space. Enjoy morning coffee in the sunny breakfast nook right off the kitchen.
Secondly, this home has great outdoor living space with 740 square feet of covered porches. In the front, we have an 8' covered porch where you can fit several rocking chairs. In the back, enjoy the outdoor fireplace and the dramatic vaulted ceiling. Best of all, notice the covered walkway that leads to the master suite. Mom and Dad love this because they have "private" access to the back porch on a star-lit evening.
Thirdly, there is lots of functional space in Country Farmhouse Plan 82542. When it's time to get work done, check out the large laundry room. Yes, it offers plenty of elbow room when you're lugging baskets full of clothes in and out. The utility sink is available for extra-dirty clothes after the kids played outside on a rainy day. Move on to the garage, and we have an optional 3rd bay that can easily be added to the front of the house. Homebuyers like options, and everyone appreciates more storage space.
Split Floor Plan Layout
The children's bedrooms have a great layout on the right side of the home. They share a Jack and Jill bathroom, so their bathroom is out of sight when guests come over. Pocket doors save space in this arrangement. Each child has a sink of their own and a walk-in closet. Notice that there is no hallway leading to the bedrooms. Thus, there is no wasted space. The guest bedroom, also labelled bedroom 3, can be used as a guest room or home office.
Mom and Dad have a wonderful master suite on the left side of the house. It has a lovely 10' boxed ceiling and quick access to the laundry room. The ensuite includes a freestanding tub, enclosed toilet with linen closet, double vanity, and separate shower. Plus, there is a large walk-in closet.
Accurate. Fast. Trusted.
Construction Cost Estimates That Save You Time and Money.
With your 30-day online cost-to-build estimate you can start enjoying these benefits today.
Home-Cost.com’s INSTANT™ Cost-To-Build Report also provides you these added features and capabilities:
Ask the Designer any question you may have. NOTE: If you have a plan modification question, please click on the Plan Modifications tab above.
A: Good morning, We would suggest that you do not use this space for a bedroom. You will only have 2’4” of space (left to right) of the 8’ head clearance, then the ceilings will slope to a 4’ wall. If you do choose to make it bedroom, please note: The upper bonus space if used as a bedroom must have egress for fire code – in case of emergency. That left side window should satisfy this. Beds typically do relatively well on the shorter walls but it will be a quaint space. The rear attic space is a great opportunity for bathroom and closet. (If you're interested, we do have a version of this particular plan with 4 bedrooms on the main level: Plan 82525.)
View Attached FileA: Thank you for your inquiry! It currently shines light into attic space but can be opened up vaulted foyer to show the window. It would be a high vault approximately 14’ high foyer ceiling.
A: Question about the vault is for your builder, he will know whether he can adjust ceiling or not. The foundation has 15 pilasters and 24 piers.
A: We do have the optional walkout basement available for this plan for an upgrade of $299. When purchasing the optional basement, you will receive a basement foundation page with a note stating that window and door placement is to be determined by builder or owner. We do not call out where doors or windows are to be placed. If you are needing a floorplan for basement area, this will have to be achieved through our modification process. Otherwise, you will only receive the foundation page that is unfinished space that mirrors main level heated/cooled space!
A: We can provide an “optional unfinished” basement If you desire a layout it will need to be run through the modification process.
A: Hello, Please see attached image for basement stair access. When adding basement stairs, we have to add 4’ of depth to this plan
View Attached FileA: Hello, I’m not sure I am clear on what is being asked here, but our optional walk-out basement is unfinished, so there is nothing to show for that. It would just be unfinished space that mirror the main level living space.
A: The whole house is based on a 9’ ceiling wall height except where noted. All bdrms, garage etc have 9’. Front and rear porch thru the house Center have 10’ height for great street appeal.
A: Yes you can! Please click the "Modifications" tab above to get more information.
A: The national average for a house is running right at $125.00 per SF. You can get more detailed information by clicking the Cost-To-Build tab above. Sorry, but we cannot give cost estimates for garage, multifamily or project plans.
If you find the exact same plan featured on a competitor's web site at a lower price, advertised OR special SALE price, we will beat the competitor's price by 5% of the total, not just 5% of the difference! Our guarantee extends up to 4 weeks after your purchase, so you know you can buy now with confidence.





















