It seems that this plan does not offer a stock materials list, but we can make one for you. Please call 1-800-482-0464, x403 to discuss further.
Right Reading Reverse: $195.00
All sets will be Readable Reverse copies. Turn around time is usually 3 to 5 business days.
Available Foundation Types:
Basement
: $350.00
May require additional drawing time, please call to confirm before ordering.
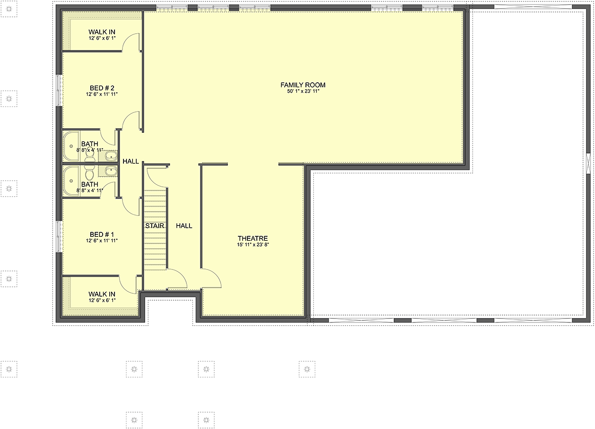
Total Living Area may increase with Basement Foundation option.
Crawlspace
: $350.00
May require additional drawing time, please call to confirm before ordering.
Slab
: $350.00
May require additional drawing time, please call to confirm before ordering.
Stem Wall Slab
: No Additional Fee
Walkout Basement
: $350.00
May require additional drawing time, please call to confirm before ordering.
Total Living Area may increase with Basement Foundation option.
Basement - * $350.00 Total Living Area may increase with Basement Foundation option. Crawlspace - * $350.00 Slab - * $350.00 Stem Wall Slab Walkout Basement - * $350.00 Total Living Area may increase with Basement Foundation option.
Exterior Walls:
2x6
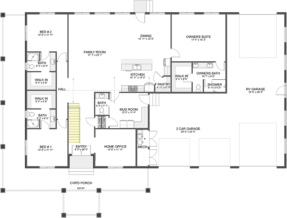
House Width:
92'0"
House Depth:
66'0"
Number of Stories:
1
Bedrooms:
3
Full Baths:
3
Half Baths:
1
Max Ridge Height:
23'5" from Front Door Floor Level
Primary Roof Pitch:
5:12
Roof Framing:
Truss
Porch:
835 sq ft
Main Ceiling Height:
10'
* May require additional drawing time.
Plan Description
Traditional Style, 2569 Sq Ft, 3 Bed, 4 Bath, 3 Car
Barndominium, Country, Traditional Style House Plan 83682 with 2569 Sq Ft, 3 Bed, 4 Bath, 3 Car Garage
Special Features:
Coat Closet
Entertaining Space
Front Porch
Mudroom
Office
Open Floor Plan
Pantry
Storage Space
Wrap Around Porch
What's Included?
A typical plan includes...
Pages
1. Notes
2. Basement/Foundation
3. Main Floor
4. Upper Floor
5. Main Floor Framing
6. Upper Floor Framing
7. Roof Framing
8. Front/Rear Elevations
9. Left Right Elevations
10. Cross Sections
11. Basement Electrical
12. Main Floor Electrical
13, Upper Floor Electrical
14. Details
In the case of single story plans, Pages 4, 6, and 13 are eliminated.
Modifications
Receive a FREE modification estimate in one of 3 ways. Our modification team is ready to help you adjust any plan to fit your needs. The ReDesign process is simple and estimates are free!
2. Print, complete and fax this PDF Form to us at 1-800-675-4916.
3. Want to talk to an expert? Call us at 913-938-8097 (Canadian customers, please call 800-361-7526) to discuss modifications.
Note: - a sketch of the changes or the website floor plan marked up to reflect changes is a great way to convey the modifications in addition to a written list.
We Work Fast!
When you submit your ReDesign request, a designer will contact you within 24 business hours with a quote.
You can have your plan redesigned in as little as 14 - 21 days!
We look forward to hearing from you!
Start today planning for tomorrow!
Cost To Build
What will it cost to build your new home?
Let us help you find out!
Family Home Plans has partnered with Home-Cost.com to provide you the most accurate, interactive online estimator available. Home-Cost.com is a proven leader in residential cost estimating software for over 20 years.
No Risk Offer: Order your Home-Cost Estimate now for just $29.95! We will provide you with a discount code in your receipt for when you decide to order any plan on our website than will more than pay you back for ordering an estimate.
Accurate. Fast. Trusted. Construction Cost Estimates That Save You Time and Money.
$29.95 per plan
** Available for U.S. and Canada
With your 30-day online cost-to-build estimate you can start enjoying these benefits today.
INSTANT RESULTS: Immediate turnaround—no need to wait days for a cost report.
RELIABLE: Gain peace of mind and confidence that comes with a reliable cost estimate for your custom home.
INTERACTIVE: Instantly see how costs change as you vary design options and quality levels of materials!
REDUCE RISK: Minimize potential cost overruns by becoming empowered to make smart design decisions. Get estimates that save thousands in costly errors.
PEACE OF MIND: Take the financial guesswork out of building your dream home.
DETAILED COSTING: Detailed, data-backed estimates with +/-120 lines of costs / options for your project.
EDITABLE COSTS: Edit the line-item labor & material price with the “Add/Deduct” field if you want to change a cost.
Ask the Designer any question you may have. NOTE: If you have a plan modification question, please click on the Plan Modifications tab above.
Common Q & A
Q:Can I make modifications to this plan?
A:Yes you can! Please click the "Modifications" tab above to get more information.
Q:What is the estimated price to build this plan?
A:The national average for a house is running right at $125.00 per SF. You can get more detailed information by clicking the Cost-To-Build tab above. Sorry, but we cannot give cost estimates for garage, multifamily or project plans.
FHP Low Price Guarantee
If you find the exact same plan featured on a competitor's web site at a lower price, advertised OR special SALE price, we will beat the competitor's price by 5% of the total, not just 5% of the difference! Our guarantee extends up to 4 weeks after your purchase, so you know you can buy now with confidence.