Basement
: $395.00
May require additional drawing time, please call to confirm before ordering.
Total Living Area may increase with Basement Foundation option.
Crawlspace
: $295.00
May require additional drawing time, please call to confirm before ordering.
Basement - * $395.00 Total Living Area may increase with Basement Foundation option. Crawlspace - * $295.00 Slab
Exterior Walls:
2x4 - * $295.00 2x6
House Width:
98'0
House Depth:
60'0
Number of Stories:
1
Bedrooms:
3
Full Baths:
3
Max Ridge Height:
18'11 from Front Door Floor Level
Primary Roof Pitch:
7:12
Roof Load:
30 psf
Roof Framing:
Truss
Porch:
240 sq ft
Deck:
192 sq ft
Main Ceiling Height:
9'
* May require additional drawing time.
Plan Description
Beautiful Red Barndominium Style House Plan
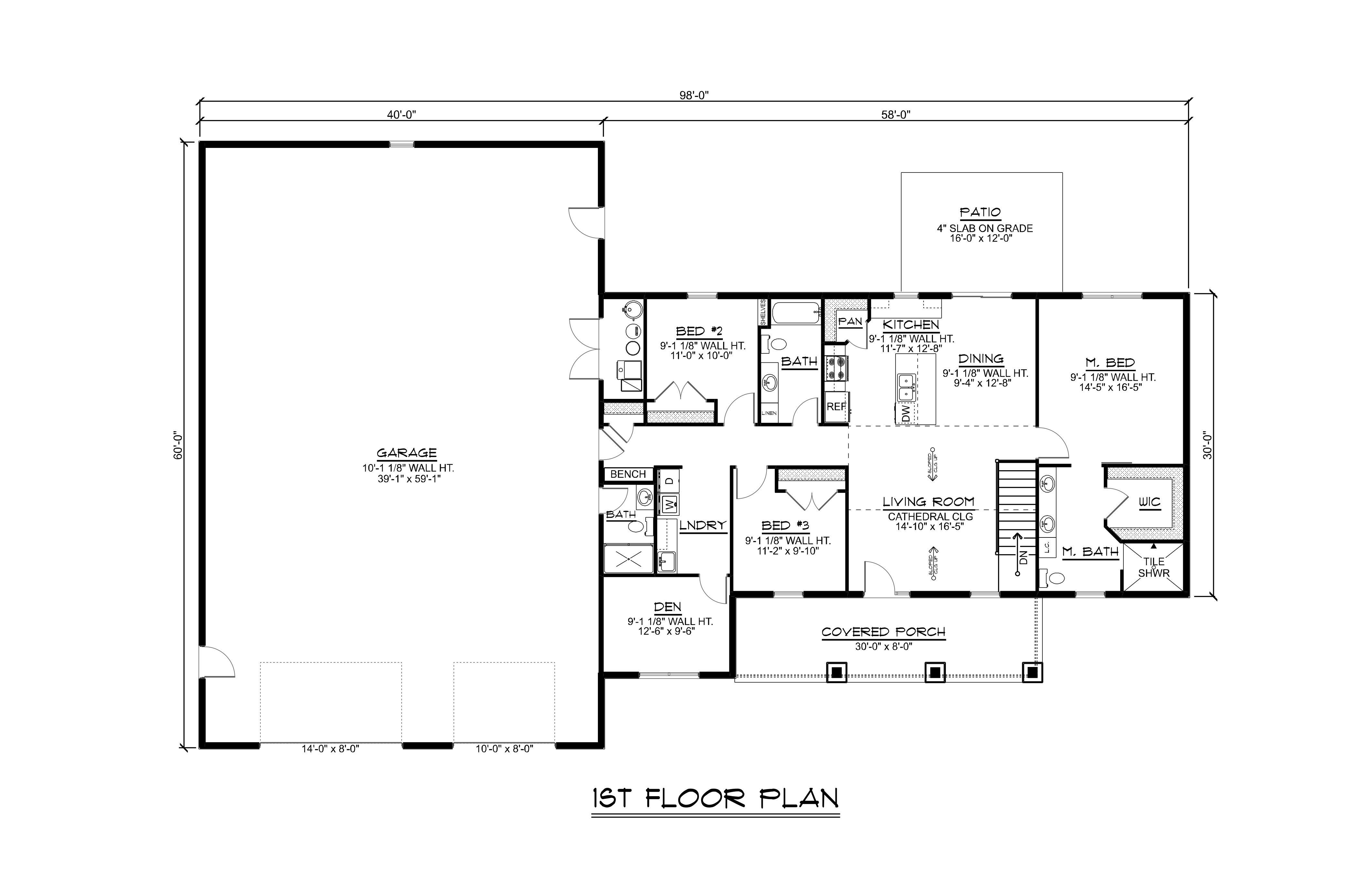
Beautiful Red Barndominium Style House Plans are becoming more and more popular. This one features a country style covered front porch for your rocking chairs. Utilize the huge garage for shop space. It has 3 parking bays. Inside, there is open living space, and the living room has a cathedral ceiling. Pass through the laundry room to access a cozy den. Mom and Dad have a big bathroom with an attached walk-in closet. In total, this plan has 1844 sq ft of living space, 3 bedrooms, and 3 baths.
Special Features:
Deck or Patio
Entertaining Space
Flex Space
Front Porch
Mudroom
Open Floor Plan
Pantry
Storage Space
Workshop
What's Included?
View Sample Plan
Sample Plan may not actually be Plan 41873. It is just an example of this designer's contruction documents.
What is not included will be beam sizes, floor framing plan, roof framing plan, wall framing plans, plumbing and hvac (We do not include these for a few reasons. Our plans are sold across the country, so it's not possible for us to meet local code requirements. To maintain usability, we allow for those details to be decided by local engineers and contractors so they can meet your code requirements.).
Modifications
Receive a FREE modification estimate.
Plan modification is a way of turning a stock plan into your unique custom plan. It's still just a small fraction of the price you would pay to create a home plan from scratch. We believe that modification estimates should be FREE!
We provide a modification service so that you can customize your new home plan to fit your budget and lifestyle.
Email Designer This is the best and quickest way to get a modification quote!
Please include your preferred Foundation Type and a Specific List of Changes. You can also attach a Sketch of Changes.
It's as simple as that!
Cost To Build
What will it cost to build your new home?
Let us help you find out!
Family Home Plans has partnered with Home-Cost.com to provide you the most accurate, interactive online estimator available. Home-Cost.com is a proven leader in residential cost estimating software for over 20 years.
No Risk Offer: Order your Home-Cost Estimate now for just $29.95! We will provide you with a discount code in your receipt for when you decide to order any plan on our website than will more than pay you back for ordering an estimate.
Accurate. Fast. Trusted. Construction Cost Estimates That Save You Time and Money.
$29.95 per plan
** Available for U.S. and Canada
With your 30-day online cost-to-build estimate you can start enjoying these benefits today.
INSTANT RESULTS: Immediate turnaround—no need to wait days for a cost report.
RELIABLE: Gain peace of mind and confidence that comes with a reliable cost estimate for your custom home.
INTERACTIVE: Instantly see how costs change as you vary design options and quality levels of materials!
REDUCE RISK: Minimize potential cost overruns by becoming empowered to make smart design decisions. Get estimates that save thousands in costly errors.
PEACE OF MIND: Take the financial guesswork out of building your dream home.
DETAILED COSTING: Detailed, data-backed estimates with +/-120 lines of costs / options for your project.
EDITABLE COSTS: Edit the line-item labor & material price with the “Add/Deduct” field if you want to change a cost.
A:Yes you can! Please click the "Modifications" tab above to get more information.
Q:What is the estimated price to build this plan?
A:The national average for a house is running right at $125.00 per SF. You can get more detailed information by clicking the Cost-To-Build tab above. Sorry, but we cannot give cost estimates for garage, multifamily or project plans.
FHP Low Price Guarantee
If you find the exact same plan featured on a competitor's web site at a lower price, advertised OR special SALE price, we will beat the competitor's price by 5% of the total, not just 5% of the difference! Our guarantee extends up to 4 weeks after your purchase, so you know you can buy now with confidence.