Plan 67445 | Cape Cod House with 5 Bed, 5 Bath, 3 Car
Call 800-482-0464
Order Code: 00WEB

House Plan 67445

Cape Cod Style House Plan 67445 with 3754 Sq Ft, 5 Bed, 5 Bath, 3 Car Garage

sq ft

3754

beds

5

baths

4.5

bays

3

width

81'

depth

59'
Elevation

Elevation

Level One

Level One

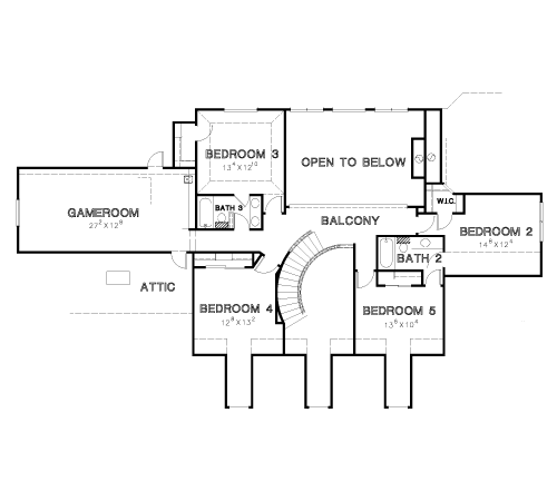
Level Two

Level Two

Featured Plans